Tarjouskauppa

Sari Mäntyranta
kiinteistönvälittäjä, kaupanvahvistaja, LKV
sari.mantyranta@kiinteistomaailma.fi
puh. 044 744 8151
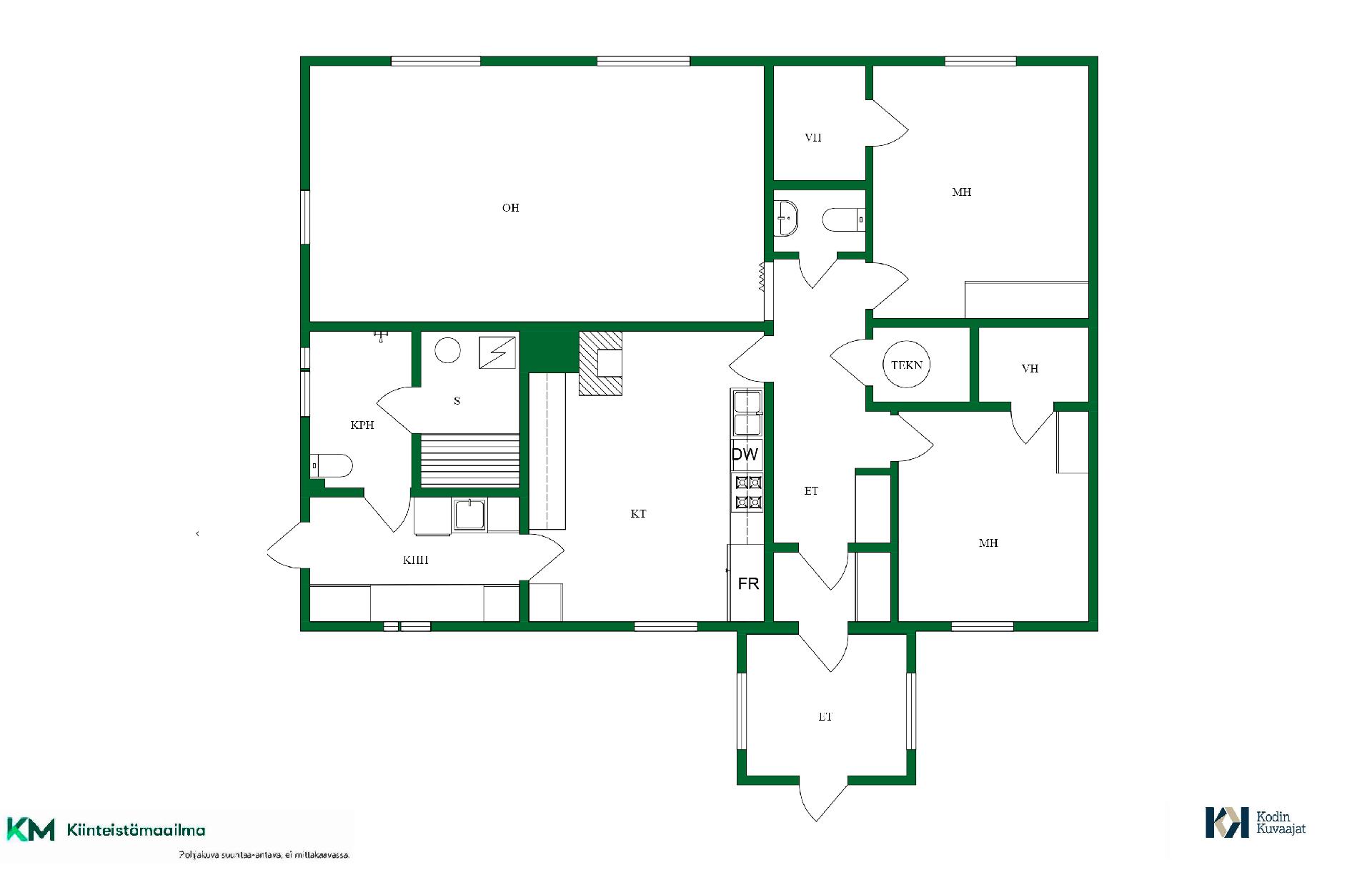
Tervetuloa tutustumaan tähän omalla tontilla sijaitsevaan omakotitaloon. Taloon on tehty paljon hyviä kunnossapitoremontteja muun muassa käyttövesi- ja lämmitysputket on uusittu, sähköjärjestelmä on uusittu aurinkopaneelien asentamisen yhteydessä ja katon huopa uusittu. Lämmityksestä huolehtii vesikiertoinen lämmitysjärjestelmä joka toimii tällä hetkellä sähkökattilalla, lisäksi iso leivinuuni tuo kodikkaan tunnelman ja lämpöä kylmimpiin talvipäiviin. Sisätilat kaipaavat pintaremonttia, joten pääset vaikuttamaan kodin ilmeeseen ja luomaan juuri sinun näköisesi kodin. Erillinen autotallirakennus tarjoaa runsaasti säilytystilaa tai työtilaa tarpeidesi mukaan. Talo on kuntotarkastettu. Olisiko tässä teidän uusi koti?