
Pamela Hannula
Yrittäjä, Företagare, LKV, AFM, LVV, KED
pamela.hannula@kiinteistomaailma.fi
puh. 050 550 3990
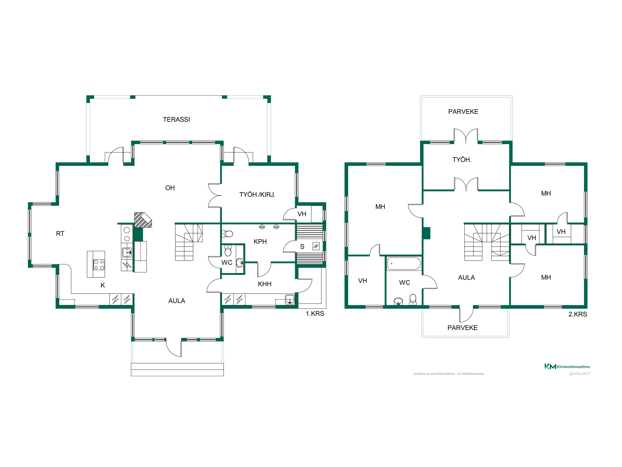
Tunnelmallinen ja energiatehokas koti Gammelbodassa – kuin suoraan sisustuslehdestä Tämä upea, vuonna 2007–2008 rakennettu puutalo tarjoaa huvilamaisen asumisen laatua ja rauhaa kahdessa tasossa. Asuinpinta-alaa on 197,5 m² ja kokonaisalaa 255,5 m². Talo sijaitsee omalla 2126 m² tontilla Gammelboda-alueella, vain noin 4 km päässä Tammisaaren keskustan palveluista. Kodissa yhdistyvät energiatehokkuus ja estetiikka: maalämpö takaa miellyttävän ja taloudellisen lämmityksen ympäri vuoden. Vuosina 2022–2025 tehdyn pintaremontin yhteydessä talon ilme on uudistunut – mm. julkisivun väri on vaihtunut ja sisätiloihin on tuotu tyylikkyyttä laadukkailla materiaaleilla, kuten William Morris- ja Sandberg-sisustustapeteilla. Kokonaisuus on harmoninen ja tyylikäs! Valoisat ja avarat tilat jatkuvat ulos: etelään avautuva lasitettu terassi kutsuu nauttimaan rauhasta ja auringosta, ja yläkerrassa on kaksi erillistä parveketta – toinen etelään ja toinen pohjoiseen. Tontti sijoittuu osittain rinteeseen, ja suojaisa takapiha tarjoaa yksityisyyttä katseilta. Kiinteistöä ympäröi koiraturvallinen aita kahdella portilla. Lisäksi kiinteistöön kuuluu noin 46 m² kokoinen talousrakennus, jossa on autotalli ja varasto. Varaa oma esittelysi! Charmigt trähus i Gammelboda, byggt 2007–2008, ca 4 km från Ekenäs. 197,5 m² boyta, tomt 2126 m². Energieffektivt med jordvärme. Ytrenoverat 2022–2025 med bla. exklusiva tapeter från William Morris och Sandberg. Inglasad terrass i söderläge, två balkonger (söder och norr), skyddad trädgård. Hundsäkert staket runt tomten med två grindar. Garage och förråd i separat byggnad. Helheten är harmonisk och stilren! Ring om visning!