
Katja Kytönen
Kiinteistönvälittäjä LKV, KED, LVV, Kiinteistönvälittäjä LKV, Kiinteistöedustaja KED
katja.kytonen@kiinteistomaailma.fi
puh. 0504623316
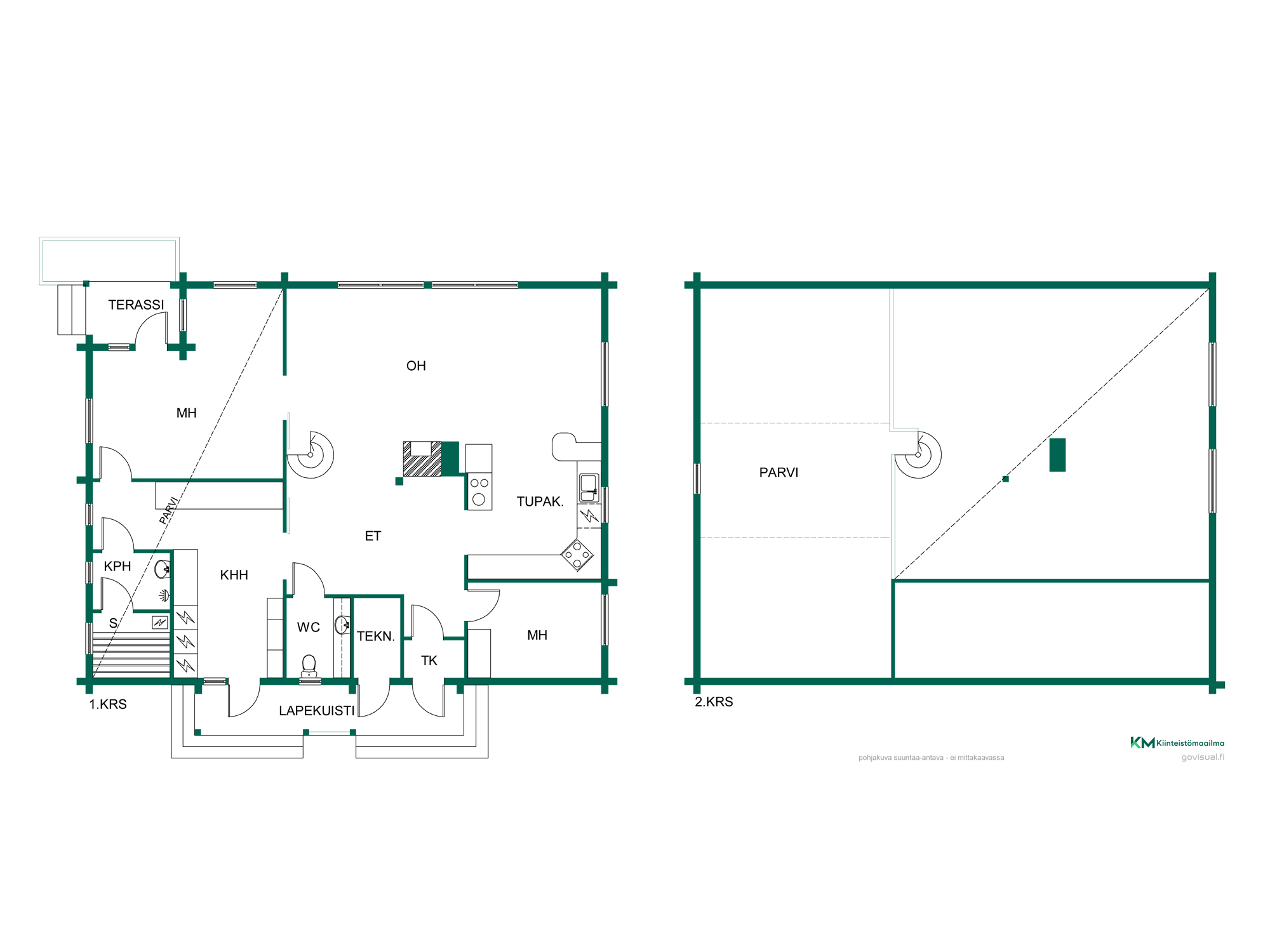
Etsitkö paikkaa, jossa arjen kiireet pysähtyvät jo pihaan kääntyessä? Missä meri, luonto ja rauha ympäröivät sinut joka päivä? Tervetuloa Munapirtin helmeen – Lamelli-hirsitaloon, joka tarjoaa harvinaisen yhdistelmän luonnonläheistä asumista, yksityisyyttä ja korkealuokkaista rakentamista. Tämä vuonna 2008 valmistunut hirsitalo seisoo ylpeänä omalla noin 1,16 hehtaarin tontillaan, josta osa ulottuu suoraan merelle. Kiinteistöllä on oma vesialue Labbölenlahdella sekä oma rantaviiva. Talon sijoittelu tontille on tarkoin harkittua. Suurista ikkunoista avautuvat avarat merinäkymät omien pihapeltojen ja rantavyöhykkeen ylitse. Jokainen päivä näyttää erilaiselta: aamu-usvasta kevätaurinkoon ja syksyn väriloistoon. Täällä luonto on elämys – ja osa kotiasi. Sisällä sinut toivottaa tervetulleeksi lämmin hirsipinta, luonnonvalo ja avara olohuone–keittiö -kokonaisuus, joka kutsuu viettämään aikaa yhdessä. Korkea huonekorkeus lisää tilan tuntua ja nostaa katseen ylös kohti kaunista parvea. Seisomakorkuinen parvi toimii loistavasti lisämakuuhuoneena, työtilana tai vaikkapa lasten valtakuntana – monikäyttöinen ja moderni ratkaisu, joka tekee kodista aidosti joustavan. Pihapiirissä odottaa monikäyttöinen autotalli–konehalli, joka sopii niin autoille, veneille, työkaluille kuin harrasteillekin. Rakennuksen yhteydessä on lämmin vieras- tai työhuone, jossa on oma parvi. Munapirtin saari tunnetaan rauhasta, merellisistä maisemista ja luonnon läheisyydestä. Tänne tullaan Keihässalmen sillan kautta, ja vaikka ympäristö on ihanan suojaisa, saarella on yllättävän paljon vakituista asutusta. Sovi oma esittelyaikasi: Katja Kytönen p. 050 4623316 katja.kytonen@km.fi