
Satu Sironen
kiinteistönvälittäjä, kaupanvahvistaja, LKV, LVV
satu.sironen@kiinteistomaailma.fi
puh. 0447310310
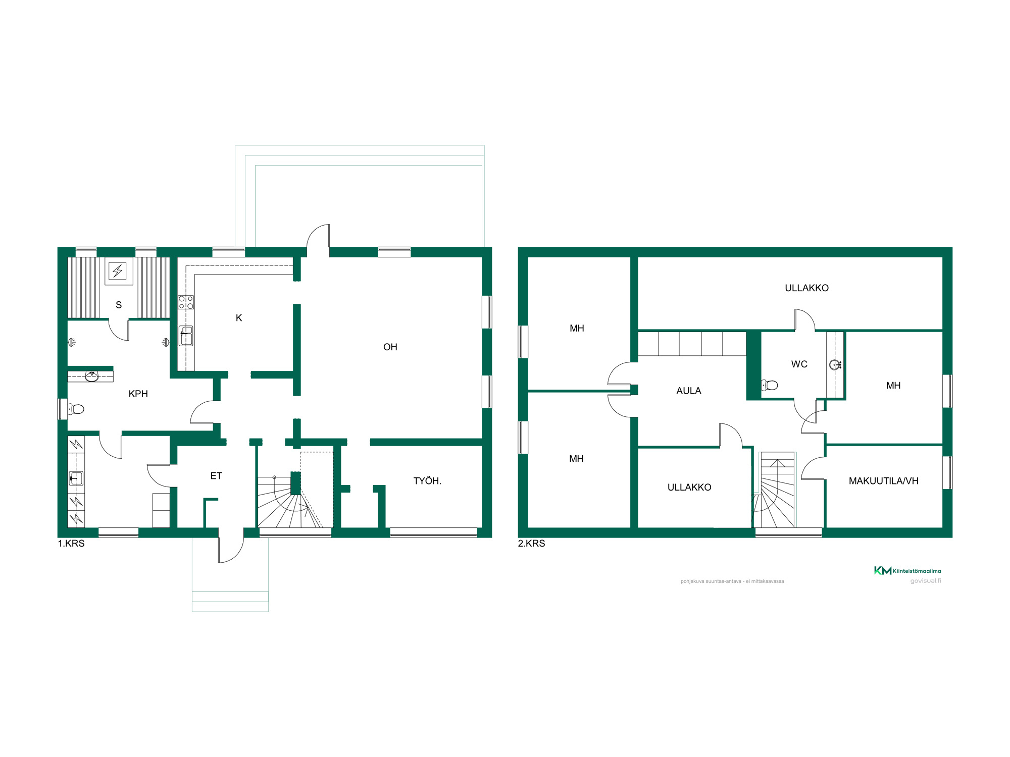
Vanhan talon henki ja nykypäivän mukavuudet kohtaavat tässä alunperin 1930-luvulla valmistuneessa, osin hirsirunkoisessa viihtyisässä kodissa, mitä on laajennettu ja saneerattu mittavasti 2012 lähtien. Talon sydämenä on suuri tupa, jonka lähes satavuotiaat seinähirret kuiskivat talon historiaa ja luovat yhdessä komean varaavan tulisijan kanssa tupaan lämpimän tunnelman. Tupa, työhuone, keittiö, kodinhoitohuone, tilava pesuhuone ja reilun kokoinen sauna sijaitsevat talon ensimmäisessä kerroksessa ja yläkerran tilat on rauhoitettu makuuhuoneille. Suuren tuvan jatkeena on takapihan suuntaan aukeava iso, lasitettu terassi, missä viihtyy myös vähän viileämmällä kelillä ja sadepäivänä. Takapiha on suojaisa, puiden ja pensaiden ympäröidessä piha-aluetta. Oma tontti on kooltaan 2565 m². Kivana lisäbonuksena pihan perällä on pihasauna, mikä varsinkin kesäaikaan on ollut ahkerassa käytössä. Autolle löytyy talli, missä on latausmahdollisuus myös sähköautolle. Autotallin yhteydessä on reilusti kylmää ja osin myös lämpöeristettyä varastotilaa ja takapihan puolella oleva lämpöeristetty leikkimökki ulkotarhoineen toimii eläinsuojana vaikka kanoille tai koirille. Sijainti on etenkin lapsiperheille loistava; koulu, päiväkoti, uimaranta, kauppa, terveysasema ja kirjasto on lähellä. Moottoritien liittymään ajaa muutamassa minuutissa ja noin vartin automatkan sisällä on Kotkan alueen kaupat ja palvelut. Kiinnostuitko? Soita Sadulle ja sovi oma esittelyaikasi, ole hyvä. Esittelyt Satu Sironen +358 44 7310 310 satu.sironen@km.fi