
Vesa Pokkinen
kiinteistönvälittäjä, LKV, LVV, KED, INS
vesa.pokkinen@kiinteistomaailma.fi
puh. 044 2405117
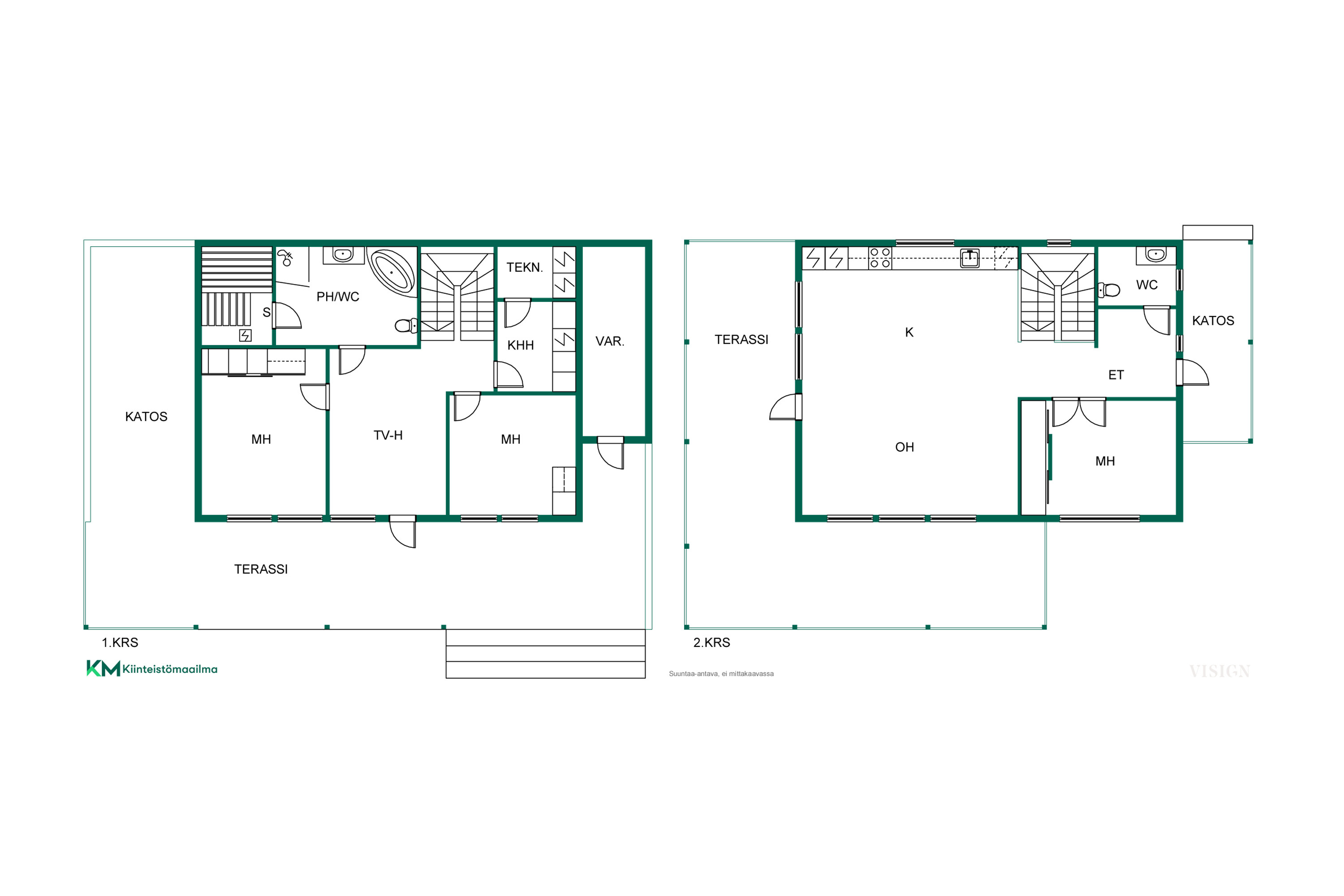
Moderni ja valoisa perhekoti halutulla Toukovuoren alueella. Tämä vuonna 2021 valmistunut laadukas koti tarjoaa täydelliset puitteet viihtyisään arkeen. Sijainti rauhallisella ja arvostetulla asuinalueella yhdistää luonnonläheisyyden ja sujuvan arjen. Kuntorata on aivan vieressä, ja koulut sekä päiväkodit sijaitsevat lyhyen matkan päässä. Porvoon keskustan palvelut tavoitat vaivatta noin 3,5 kilometrin päästä. Kodin pohjaratkaisu on suunniteltu modernia asumista silmällä pitäen. Avarassa olohuoneessa on huima yli kolmen metrin huonekorkeus ja suuret ikkunapinnat tuovat tilaan upeasti luonnonvaloa, luoden ilmavan ja kutsuvan tunnelman. Olohuoneesta on suora yhteys osittain katetulle terassille, joka kutsuu nauttimaan rauhallisista hetkistä ja on helposti lasitettavissa. Keittiö on varustettu kattavasti integroiduilla kodinkoneilla, ja kylpyhuoneen yhteydessä oleva oma sauna Harvian pilarikiukaalla tarjoaa arjen pientä luksusta. Vesikiertoinen lattialämmitys koko kodissa lisää asumismukavuutta huomattavasti. Tilat jakautuvat selkeästi viiteen huoneeseen, sisältäen muun muassa kodinhoitohuoneen ja erillisen wc:n, mikä helpottaa lapsiperheen kiireisiä aamuja. Tämä koti on rakennettu kestämään ja nauttimaan. Pihapiiri on siisti ja asfaltoitu, ja autokatos varastotiloineen tuo tarvittavaa käytännöllisyyttä ulkoiluvälineiden säilytykseen. Taloon on valmiina valokuitu- ja kaapeli-tv-yhteydet. Vuokratontti on tarvittaessa lunastettavissa omaksi Porvoon kaupungilta. Tule ihastumaan tähän valoisaan kokonaisuuteen paikan päälle. Ota yhteyttä ja sovitaan esittely – tämä koti saattaa hyvinkin olla uusi alkusi Porvoon tunnelmallisissa maisemissa.