
Niko Leinonen
myyntipäällikkö, kiinteistönvälittäjä, LKV, LVV
niko.leinonen@kiinteistomaailma.fi
puh. 040 831 5032
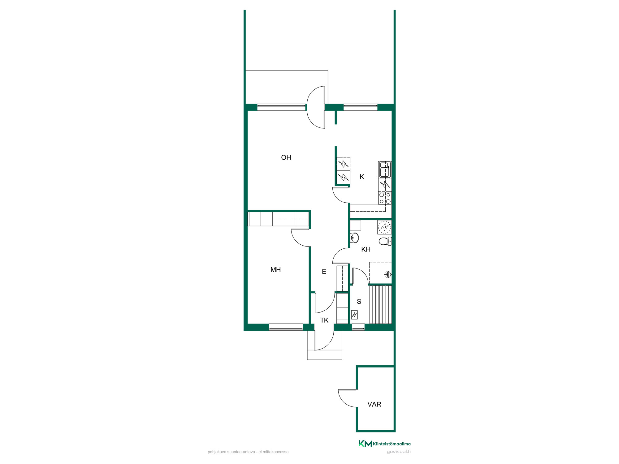
Siistikuntoinen, tilava kaksio rauhalliselta sijainnilta Haukiputaan Harritieltä. Kaukolämpötaloyhtiöstä on pidetty hyvin huolta. Esimerkiksi vesikate on uusittu 2016 ja kaukolämmön alajakokeskus ja mm. vesimittarit vaihdettu uusiin. Huoneistossa on toimiva pohjaratkaisu. Keittiötä on päivitetty 2000-luvun alussa. Takapiha on tilava ja suojainen. Takaterassille on käynti olohuoneesta. Asunnossa on hyvin kaappitilaa sekä siisti ulkovarasto. Autopistokepaikka jokaisen huoneiston käytössä. Varaathan näyttöaikasi.