Tarjouskauppa

Pauliina Pirilä
kiinteistönvälittäjä, LKV, KiLAT
pauliina.pirila@kiinteistomaailma.fi
puh. 044 240 8753
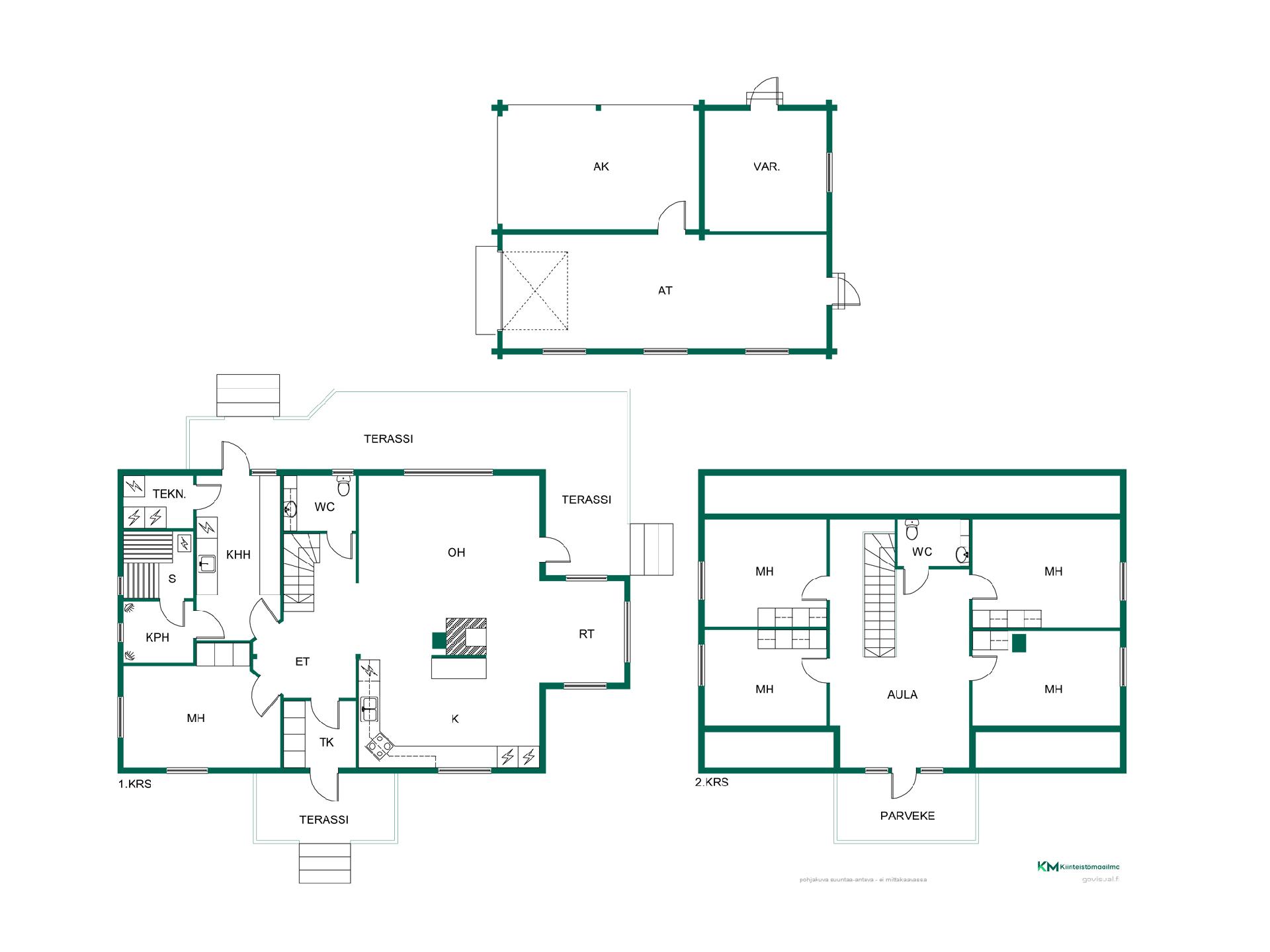
Tervetuloa Kiimingin Huttukylään! Aivan ihana piilopirtti metsän suojassa, kuitenkin ketterän matkan päässä palveluista. Reilun hehtaarin kokoiselta omalta tontilta löytyy kaunis kokonaisuus, joka kätkee sisäänsä upean kaksitasoisen hirsitalon, kuin myös hirrestä rakennetun autotalli-varastorakennuksen. Lisäksi pihapuiden suojassa on oma keidas - lampi, jossa pääsette perheen kesken viilentymään kesäisin ja luistelemaan talvella. Lammen rannalla aurinkoterassin lisäksi tunnelmallinen kota, jossa mukava istua iltaa ja nauttia nuotion loimusta. Vuonna 2006 valmistunutta maalämmöllä lämpenevää Mammuttihirsitaloa on asuttu rakkaudella. Kodista on pidetty hyvää huolta, mukavuuksia lisäten ja pintoja tarpeen mukaan päivittäen. Myös tekniikasta on pidetty huolta muun muassa maalämpökone on uusittu vast’ikää, keittiön kodinkoneet uusittu ja julkisivu huoltomaalautettu. Koti on kauniin valoisa sekä avara, lisää lämpöä ja tunnelmaa kotiin tuo varaava takka/leivinuuni. Viilennykseen puolestaan on molemmissa kerroksissa ilmalämpöpumput. Huttukylä on nimensä mukaisesti kylänomainen tunnelmallinen asuinalue, jossa viihtyy etenkin perheet sekä omaa rauhaa ja tilaa kaipaavat. Lähisuolla pääset hiihtämään, vieressä virtaavalla Kiiminkijoella kalastamaan ja metsissä retkeilemään. Kiimingin palvelut tavoittaa nopeasti, eikä Oulun keskustaankaan ole kuin noin puolentunnin ajomatka. Huttukylän koululle matkaa on vain noin kaksi kilometriä, koulussa on opetusta tällä hetkellä vuosiluokille 1-6. Tervetuloa tutustumaan unelmiesi kotiin Pälsyntiellä! Varaa oma esittelyaikasi välittäjältä.