
Leeni Alatalo
myyntipäällikkö, kiinteistönvälittäjä, LKV, LVV, KiLAT
leeni.alatalo@kiinteistomaailma.fi
puh. 040 580 1305
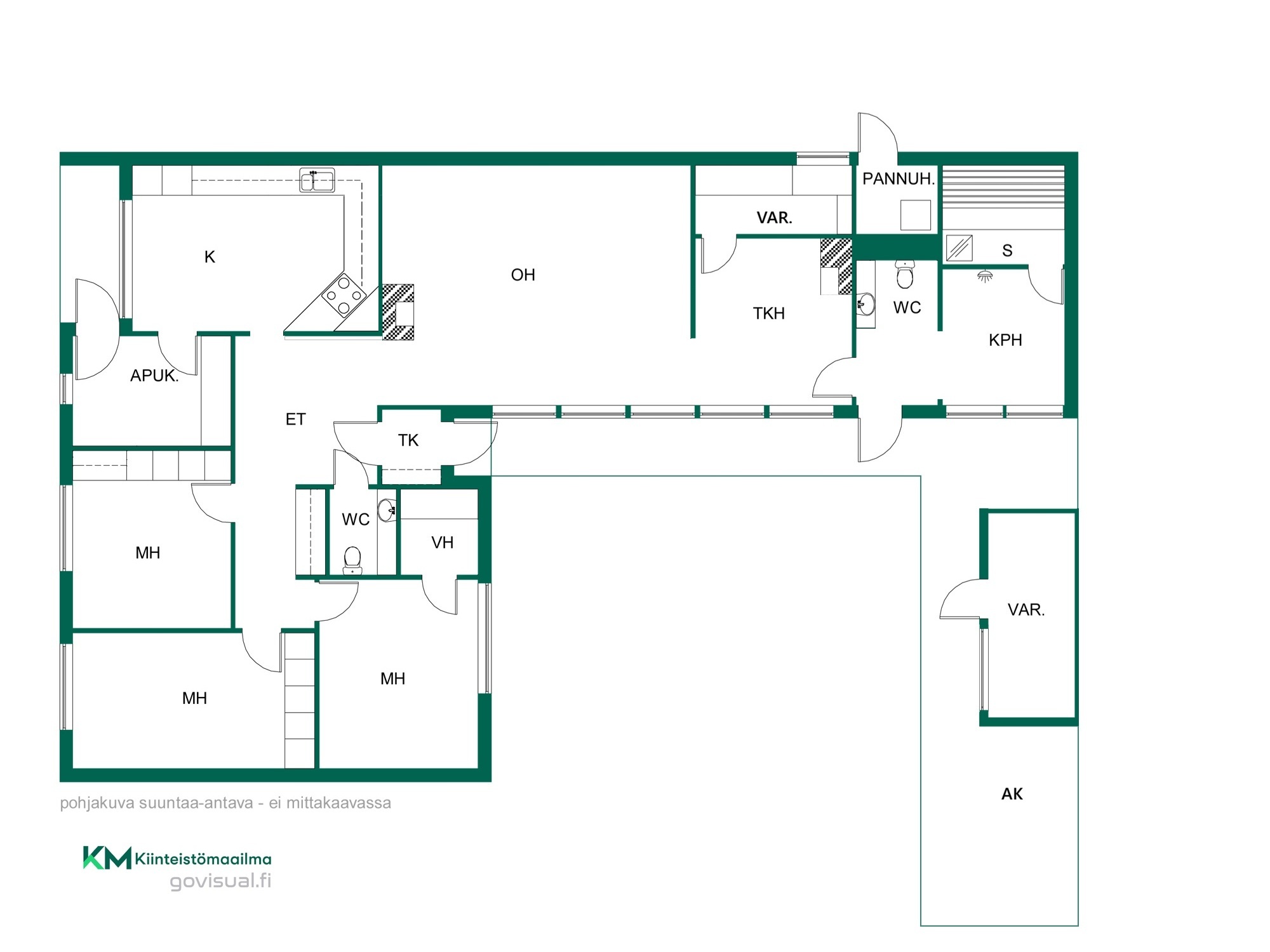
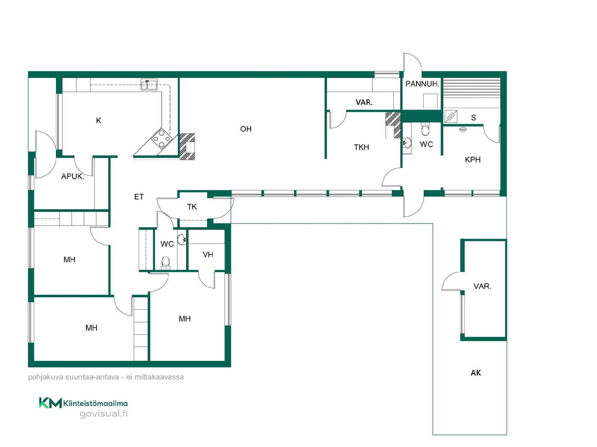
Tämä upea yksitasoinen omakotitalo Välivainiolla on erinomainen valinta remontoitua ja huoletonta kotia etsivälle. Kattavasti saneerattu 150 neliön yksitasoinen koti tarjoaa käytännöllisyyttä energiatehokkaalla maalämmöllä. Pohjaratkaisu on suunniteltu fiksusti perhe-elämään: tästä kodista löytyy valoisa olohuone ja tilavat makuuhuoneet. Koti on jo valmiiksi kuntotarkastettu helmikuussa 2026. Välivainio on loistava alue lähellä Oulun keskustaa. Palvelut, kaupat ja yhteydet ovat aivan käden ulottuvilla, mutta silti rauhallisessa ympäristössä. Varaa esittelyaikasi nyt - tervetuloa ihastumaan!