Tarjouskauppa

Henry Himanen
yrittäjä, kiinteistönvälittäjä, LKV, LVV
henry.himanen@kiinteistomaailma.fi
puh. 044 5026 686
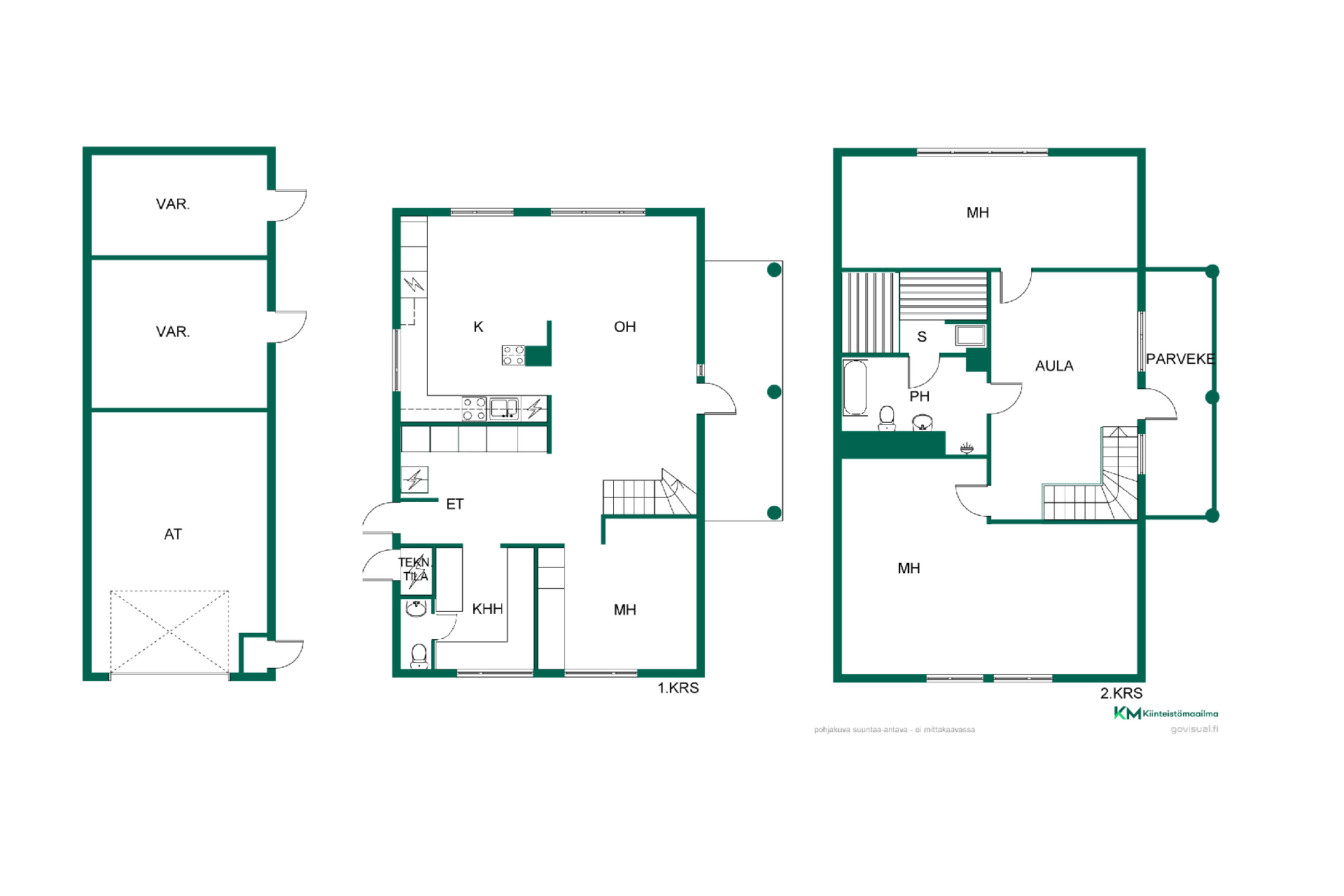
Valoisa omakotitalo perheystävällisellä ja rauhallisella Lämsänjärven alueella Tervetuloa tutustumaan tähän kodikkaaseen tiiliverhoiltuun omakotitaloon Oulun suositulla Lämsänjärven alueella. Tämä viihtyisä koti sijaitsee erinomaisella paikalla, jossa luonnonläheisyys ja arjen helppous kohtaavat. Knuutilankankaan palvelut ovat mukavan lähellä, ja sujuvat yhteydet kaupungin keskustaan varmistavat vaivattoman arjen. Tämä kahdessa tasossa oleva talo tarjoaa toimivat puitteet asumiseen. Vuonna 2013 remontoitu keittiö toimii kodin sydämenä, ja sieltä löytyy muun muassa tyylikkäät kivitasot sekä tunnelmallinen puuhella. Avara pohjaratkaisu ja suuret ikkunat päästävät luonnonvalon tulvimaan sisään, luoden kotiin kutsuvan ja raikkaan tunnelman. Kokonaisuuden täydentävät puusaunalla varustettu kylpyhuone sekä erillinen wc. Kodissa on huomioitu arjen tarpeet monipuolisesti. Valokuituyhteys pitää huolen nykyaikaisista tietoliikenneyhteyksistä, ja oma piha kutsuu nauttimaan ulkoilmasta huvimajan ja kesäkeittiön merkeissä. Lämmitysjärjestelmänä toimii kaukolämpö, joka on jaettu tehokkaasti ilmalämmityksen avulla. Tontti on vuokrattu Oulun kaupungilta vuoden 2045 loppuun saakka. Tämä koti on huolella pidetty ja valmis toivottamaan uudet asukkaat tervetulleiksi. Autotalli ja ulkovarasto tuovat kaivattua säilytystilaa. Huomioithan, että autotallirakennus myydään remonttia vaativana. Olette lämpimästi tervetulleita tutustumaan tähän viehättävään kokonaisuuteen paikan päälle. Ota yhteyttä ja sovitaan yksityisnäyttö, jotta pääsette aistimaan tämän kodin tunnelman itse.