
Juho Sipilä
yrittäjä, toimitusjohtaja, kiinteistönvälittäjä, LKV, LVV, kaupanvahvistaja
juho.sipila@kiinteistomaailma.fi
puh. 045 674 6964
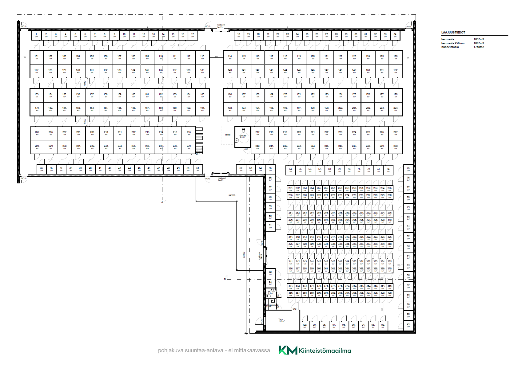
Parempi kuin sijoitusasunto! Kuusamontien varteen on on nousemassa huippusijainnille hulppean kokoinen pienvarastohalli. Tontti on Kuusamontien vieressä, reilun viiden kilometrin päässä Oulun keskustasta. Omistamalla pienvaraston tästä hankkeesta, pääset nauttimaan kaikkien kulujen jälkeen jopa 15 prosentin vuokratuottoa, ja vielä ilman velkavipua! Erinomainen tilaisuus sijoittaa tuotteeseen, jossa tuotot ovat perinteistä asuntosijoittamista huomattavasti korkeammalla, ja kassavirta luonnollisesti erittäin positiivinen, koska tässä hankkeessa ei velkavipua tarvita. Rakennus pienvarastoineen rakennetaan täysin ilman yhtiölainaa, ja maksupostit kulkevat rakennusvaiheiden mukaisesti. Näin ollen voidaan todeta, että sijoittamisen riski on tämän hankkeen osalta harvinaisen matalalla tasolla. 400 pienvarastoa jakautuvat kolmeen kokoluokkaan: 1-neliöinen, 2-neliöinen ja 4-neliöinen. "Huonekorkeutta" varastoilla on noin 2,7 metriä. Ostajana pääset nauttimaan todella vaivattomasta ja passiivisesta sijoittamisesta, sillä halli on täysin automatisoitu ja vartioitu. Vuokralaisten hostauspalvelu hoitaa varastojen pysymisestä vuokralla, eikä sinun tarvitse käytännössä tehdä mitään. Hostauspalvelu on toki vapaaehtoinen, mutta tämäkin kulu on huomioitu jo tuottolaskelmissa. Tällä hetkellä vastaavien pienvarastojen vuokrausaste on Oulussa noin 95-99%, ja tuottolaskelmat on tehty 90% varausasteen mukaisesti. Lasketaan sopivan kokoinen varastonippu juuri sinulle, ja laitetaan raha poikimaan! Luonnollisesti varastot sopii varsin hyvin myös omaan tai yrityksesi käyttöön. Oleppa yhteydessä!