
Emilia Nikkilä
myyntipäällikkö, kiinteistönvälittäjä, LKV, KiLAT
emilia.nikkila@kiinteistomaailma.fi
puh. 0443481737
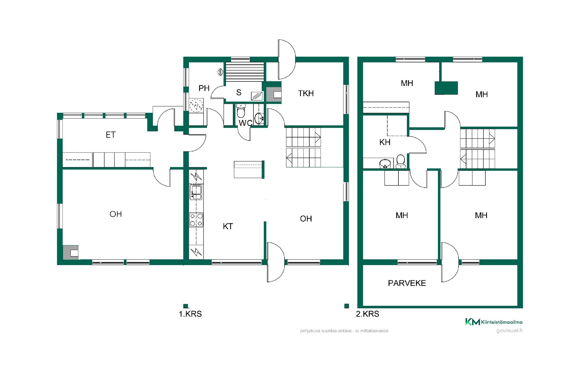
Isotonttinen omakotitalo upeissa järvi- ja peltomaisemissa, omassa rauhassa mutta lähellä palveluita! Tämä vuonna 1982 valmistunut ja vuonna 1992 laajennettu, kaksitasoinen omakotitalo sijaitsee omalla 7 814 m² kiinteistöllä Oriveden Holmassa. Asuinpinta-alaa on 154 m². Kaikki kolme makuuhuonetta sekä yksi wc sijaitsevat yläkerrassa. Alakerrassa on keittiö ja olohuone, takkahuone ja laajennuksessa toinen olohuone. Lisäksi alakerrassa on pesutilat, puusauna Aitokiukaalla sekä erillinen wc. Keittiö on uusittu vuonna 2009 ja pesutilat on remontoitu n. vuonna 2015 vesieristeineen. Lämmitysmuotona on suora sähkölämmitys patterein, ilmalämpöpumppu sekä useat varaavat tulisijat. Sähkönkulutus onkin ollut vain noin 12 000 kWh/v. Katto on huollettu ja pinnoitettu vuonna 2025. Pihapiiri on monipuolinen ja siellä on runsaasti tilaa eri käyttötarkoituksiin. Pihassa on kahden auton autotalli, jonka yhteydessä on kylmä varasto sekä lisärakennuksina leikkimökki, puuvaja ja toiminnassa oleva maakellari. Kiinteistöllä on oma porakaivo ja jätevesijärjestelmä on uusittu vuonna 2017. Oriveden keskustan palvelut ovat noin 4 km ajomatkan päässä ja Tampereen ja Jyväskylän suuntaan kulkeminen on helppoa. Tämä talo onki erityisesti sinua varten, joka arvostat omaa rauhaa ja upeita maaseutumaisemia mutta haluat kuitenkin asua asfalttitien varressa lähellä palveluita. Tätä taloa esitellään vain yksityisesittelyin. Soita ja varaa oma esittelyaikasi. Tervetuloa!