
Satu Saranen
yrittäjä, kiinteistönvälittäjä, kaupanvahvistaja, LKV, KiAT, insinööri AMK
satu.saranen@kiinteistomaailma.fi
puh. 040 574 9615
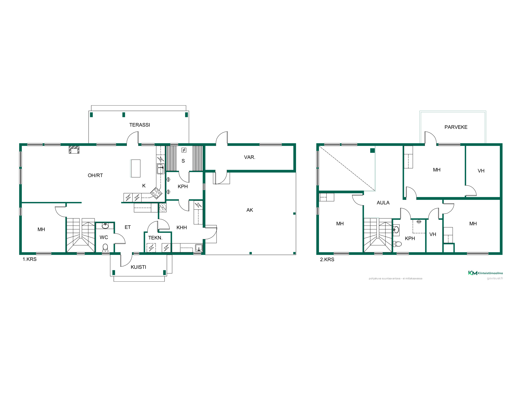
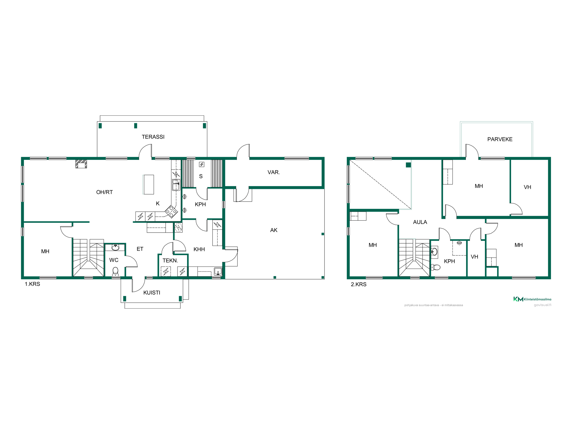
Modernia asumismukavuutta luonnonläheisessä Klaukkalassa Tervetuloa unelmiesi kotiin! Tämä vuonna 2016 valmistunut, tilava ja laadukkaasti rakennettu omakotitalo Klaukkalan rauhallisella ja lapsiystävällisellä alueella tarjoaa modernia asumismukavuutta sekä toimivaa arkea isommallekin perheelle. Pinta-alaa ja toimivuutta: 5h, keittiö, kodinhoitohuone, sauna, aula, 2 kylpyhuonetta, erillinen wc, 2 vaatehuonetta, tekninen tila Kahden auton autokatos ja reilusti säilytystilaa (lämmin varasto + erillinen 18 m² pihavarasto) Laatua ja tekniikkaa: Lämmitysmuotona kustannustehokas maalämpö, vesikiertoinen lattialämmitys sekä varaava takka ja ilmalämpöpumppu Koneellinen ilmanvaihto lämmöntalteenotolla Sälekaihtimet, keskuspölynimuri ja hälytysjärjestelmä lisäävät asumismukavuutta Makuuhuoneita ja mukavuutta: Yhteensä 4 makuuhuonetta ja yläkerran aula, joka toimii vaikkapa arkiolohuoneena tai työtilana Laadukkaat pintamateriaalit, tilava keittiö ja upea lasitettu terassi Oma 1239 m² tontti – hyvin hoidettu piha istutuksineen tarjoaa tilaa lasten leikeille ja kesäpäivien viettoon. Erinomainen sijainti: Lepsämän päiväkoti ja Lintumetsän koulu alle kilometrin säteellä Lähimmät ruokakaupat, kirjasto, terveyskeskus ja muut palvelut vain 5–6 km päässä Tervetuloa tutustumaan. Varaathan oman esittelyajan!