
Sanna Hotanen
yrittäjä, toimitusjohtaja, kaupanvahvistaja, LKV
sanna.hotanen@kiinteistomaailma.fi
puh. 0405818201
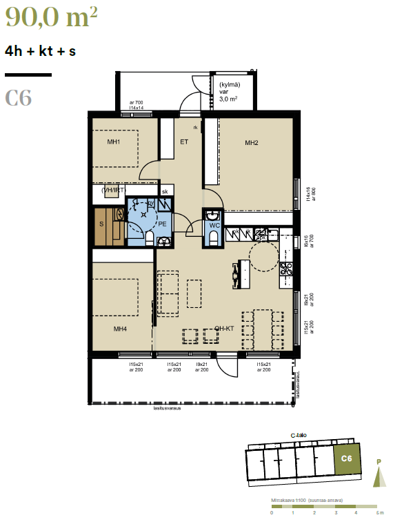
Uusi koti Muuramen keskustan tuntumasta! Muuramen viihtyisälle asuinalueelle rakentuu rivitalokohde Asunto Oy Muuramen Koivikko. Kohteesta löytyy sopivia vaihtoehtoja monenlaiseen elämäntilanteeseen. Kaikki kodit ovat yhdessä tasossa. Omalle tontille rakentuva kohde tarjoaa modernina rivitalona erinomaisen mahdollisuuden huoletonta asumismuotoa etsivälle. Taloyhtiön kolmessa rakennuksessa on yhteensä 15 asuntoa. Koteja löytyy neljän huoneen kodista pienempään kahden huoneen, 50 m2:n kotiin. Jokaisella asunnolla on oma terassi ja piha. Sisäänkäynnin yhteydestä löytyy oma irtaimistovarasto (kylmä). Pyörille ja ulkoiluvälineille on paikka erillisessä ulkoiluvälinevarastossa. Autopaikat myydään erillisinä osakkeina. Koivikon pohjaratkaisut ovat selkeitä ja suunniteltu toimimaan arjessa. Kotien suunnittelussa on otettu huomioon säilytystilojen riittävyys ja helppohoitoisuus. Asukkaat pääsevät nauttimaan kaukolämmöllä luotettavasti toimivasta vesikiertoisesta lattialämmityksestä. Kylpyhuoneissa on sähköllä toimiva mukavuuslattialämmitys ja oman saunan löylyistä nautitaan jokaisessa asuntotyypissä. Muuramen kaikki palvelut, koulu, päiväkoti ja erinomaiset lenkkimaastot ovat kävelymatkan päässä. Myös uimahalli ja uimaranta ovat aivan kivenheiton päässä. Kohde valmistuu kesällä 2026. Tervetuloa tutustumaan ja ostamaan omaksi!
Kohde on yhtiölainoitettu. Taloyhtiölainasta on vastuussa jokainen osakas. Jos lainaa koskevia pääomavastikkeita ei saada joidenkin asuntojen osalta muutoin perittyä, maksuvelvollisuus voi langeta viime kädessä muille osakkaille.