
Niko Merikko
yrittäjä, kiinteistönvälittäjä, kaupanvahvistaja, LKV
niko.merikko@kiinteistomaailma.fi
puh. 044 2632 464
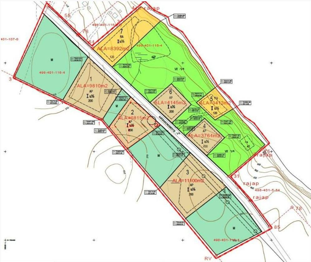
Ranta-asemakaava-alue Karsikkoniementiellä. Harvinainen tilaisuus Muoniojoen varrella! Myytävänä 14 hehtaarin suuruinen Karsikkoniemen ranta-asemakaava-alue, joka sijaitsee noin 8 km Muonion kirkonkylältä lounaaseen. Alue tarjoaa poikkeuksellisen mahdollisuuden rakentaa omalle rauhalliselle paikalle puhtaiden vesien äärelle Tunturilapin upeissa maisemissa. Sijainti ja ympäristö •Alue sijoittuu lähelle Tornio–Muoniojoen Natura 2000 -aluetta, mikä takaa luonnonrauhan ja maisemien säilymisen. •Kulkuyhteys alueelle on Karsikkoniemen yksityistietä pitkin. Rakennusoikeudet: Ranta-asemakaavan mukaan alueelle saa rakentaa: •2 RA-loma-asuntoa •5 asuinpientaloa •Lisäksi rannalla mahdollisuus erilliselle rantamökille (40 m²) Mahdollisuudet ovat erinomaiset niin yksityiseen käyttöön, sijoittamiseen kuin matkailutoiminnan kehittämiseen. Miksi tämä kohde? •Rauhallinen sijainti luonnon keskellä •Suuri, monipuolinen tonttialue •Rakennusoikeudet valmiina •Sähkölinja alueella, mikä helpottaa rakentamisen suunnittelua. •Lähellä Muonion palveluja ja Lapin matkailukeskuksia mm. Pallas, Olos, Levi. Kiinnostuitko? Ota yhteyttä ja sovi oma esittelyaikasi. Kiinteistömaailma Levi