Tarjouskauppa

Mari Juka
Yrittäjä, Kiinteistönvälittäjä, LKV, LVV, kaupanvahvistaja
mari.juka@kiinteistomaailma.fi
puh. 045 806 6200
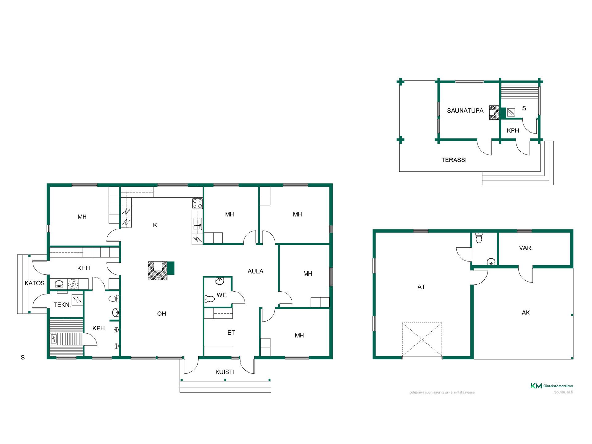
Upea kokonaisuus omalla lähes 3000m2 omalla, todella suojaisalla pihapiirillä Juusolantien perällä, missä 1-tasoinen 2015 valmistunut Kastellitalojen omakotitalo, suuri lämmin autotalli lämpimillä varastotiloilla, kahden auton katoksella, sekä Tiimatupien hirsisaunalla, minkä yhteydessä niin tupa, suuret terassit kuin palju. Tämä kokonaisuus on todella huolella suunniteltu. Upea hoidettu pihapiiri, mikä otettu todella hyvin kokonaisuudessaan hyötykäyttöön ja sinne on rakennettu monenlaiset toiminnot, joista pääsee nauttimaan niin kesäisin kuin talvisin. Itse koti on myös erittäin huoliteltu ja hyvin suunniteltu lapsiperheen muuttuviin tarpeisiin. Kodissa on tilava sisääntuloeteinen, missä runsaasti säilytystilaa, säilytystilaa toki löytyy muualtakin, kaikissa makuuhuoneissa on kaapistot, suuri erillinen kodinhoitotila omalla uloskäynnillä, lisäksi suuri lämmin varasto autotallin yhteydessä, sekä puille oma liiteri. Tilavat makuuhuoneet, joista neljä on omassa rauhassaan talon toisessa päässä ja päämakuuhuone oleskelu- sekä saunaosaston yhteydessä. Toimiva ja tilava keittiö, missä runsaasti kaapistoja, sekä työskentelytasoja, mikä aukeaa mukavasti myös olohuoneen puolelle. Oleskelutiloista on käynti suurelle etelä-lännen suuntaiselle aurinkoterassille, lisäksi on oma osin katettu, suojainen terassi myös hirsisaunan yhteydessä. Tässä kodissa ei kesämökistä tarvitse erikseen haaveilla, se löytynee ihan omasta pihasta. Kauniisti rakennettu pihapiiri missä kirsikkapuita, vadelmia, marjapensaita, mansikkamaa, nuotiopaikka ja lisäsi hirsisaunan yhteydessä autotallin takana on mukavasti porrastettu luonnonmukainen piha. Sovi oma yksityisesittelyaikasi!