
Timo Talvilaine
yrittäjä, YKV, LKV, kaupanvahvistaja
timo.talvilaine@kiinteistomaailma.fi
puh. 050 543 7369
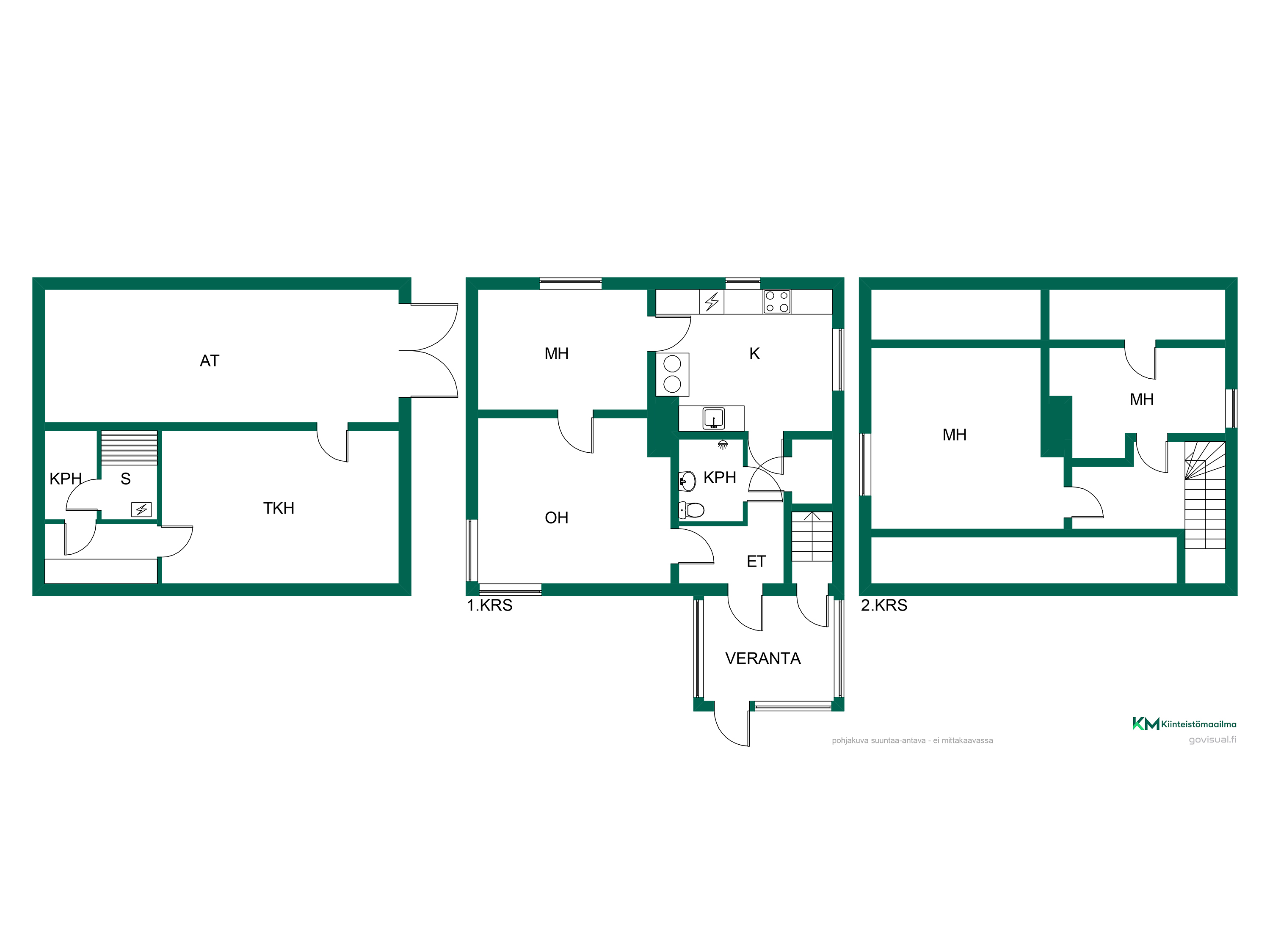
Remonttiunelma Uudessa-Euroopassa. Tervetuloa tutustumaan tähän viihtyisään omakotitaloon, joka sijaitsee rauhallisella ja arvostetulla Lempäälässä. Sijainti tarjoaa erinomaiset puitteet arkeen, yhdistäen luonnonläheisyyden ja sujuvat kulkuyhteydet. Yläkerrassa 2 makuuhuonetta ja vinttitilaa. Keskikerroksessa keittiö, makuuhuone ja tilava olohuone varaavine takkoineen. Kellarissa takkatila, saunaosasto ja autotalli. Nyt sinulla on ainutlaatuinen tilaisuus tehdä tästä kodista omasi. Tutustu kohteeseen tarkemmin oheisen videoesittelyn avulla. Ota yhteyttä ja sovitaan esittely – tämä koti on nähtävä paikan päällä, jotta voit aistia sen tunnelman itse. Tervetuloa tutustumaan uuteen kotiisi!