
Mertsi Friberg
yrittäjä, toimitusjohtaja, kaupanvahvistaja, kiinteistönvälittäjä LKV, LKV
mertsi.friberg@kiinteistomaailma.fi
puh. 050 523 0937
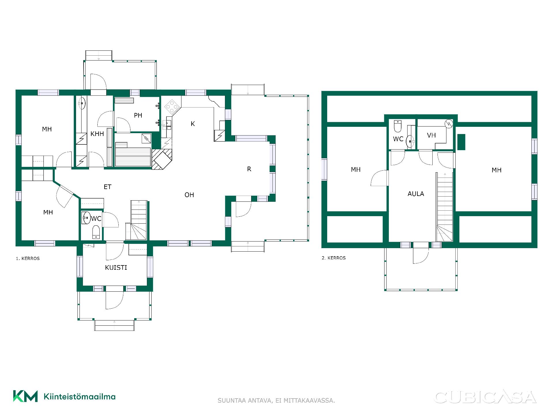
Kaunis 2008 valmistunut näyttävä puutalo omalla tasaisella 6000m2 tontilla. Tässä maalaisromanttisessa talossa kauneus ja käytännöllisyys kulkevat käsikädessä. Hyvät säilytystilat niin sisällä kuin ulkovarastossa. Pihassa katos kahdelle autolle. Kotipuutarhurin unelmatontti. Onnellista asumista maalaismiljöössä, vain 20 minuutin päässä Tampereen keskustan sykkeestä. Tule ja ihastu.