
Timo Talvilaine
yrittäjä, YKV, LKV, kaupanvahvistaja
timo.talvilaine@kiinteistomaailma.fi
puh. 050 543 7369
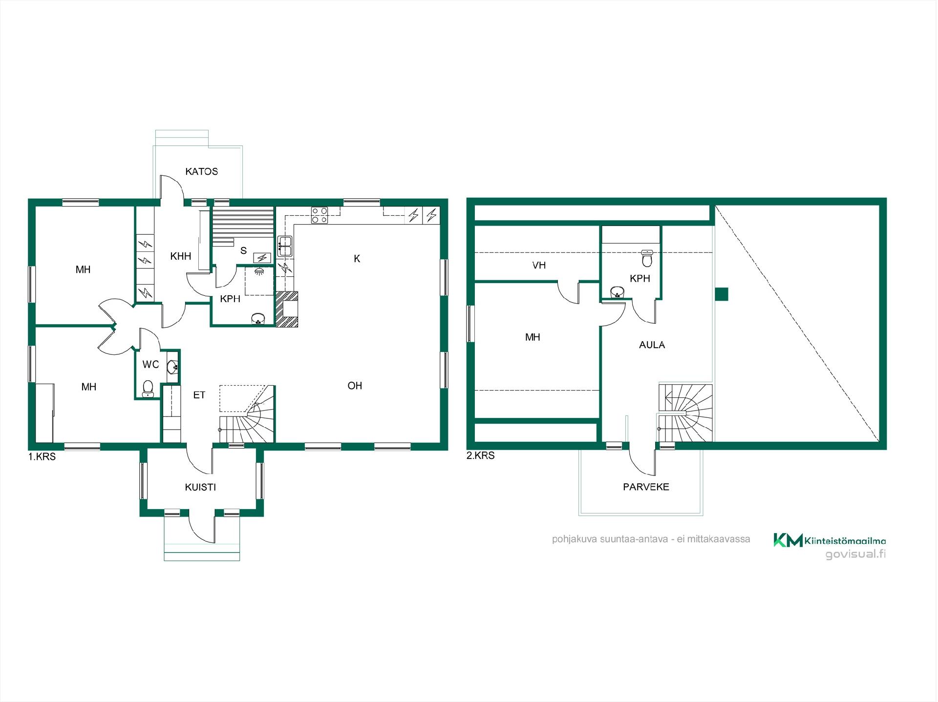
Tunnelmallinen, skandinaavisen värityksen omaava puutalo erinomaisella sijainnilla ja omalla tontilla nyt vapautumassa. Kuljun ja Ideaparkin palvelut ovat lähelläsi ja Tampereen läheisyys lisää varmasti tämän kohteen haluttavuutta. Lähialueelta löytyy myös mainiot ulkoilumahdollisuudet. Alakerrassa avara olohuone yhdistyy upeasti yhtenäisenä korkeana tilana keittiöön. Jykevät kattopalkit tuovat tilaan hienoa lisäilmettä. Tummapintainen keittiö on uusittu 2014. Laskutilaa ja kaapistoja riittää vaativampaankin käyttöön. Yhtenäinen keittiö/olohuone-tila antaakin sisustajalle hienot puitteet unohtamatta kaunista vaalea pintaista kaakeloitua takkaa, mikä tuo lämpöä ja tunnelmaa pakkaspäiviin. Eteinen on tilava ja taloon on kaksi sisäänkäyntiä. Etelän puoleiselta kuistilta tai vastakkaiselta takapihan puolelta. Alakerrassa omassa rauhassa vierekkäin on kaksi sopivan kokoista makuuhuonetta. Lisäksi löytyy sauna pilarikiukaineen sekä pesu- ja kodinhoitotilat. Wc-tila on erillinen. Yläkertaan kuljetaan valkoiseksi maalattuja portaita pitkin. Yläaula on jo itsessään tilava. Täältä pääsee myös katetulle parvekkeelle. Kolmas ja suurin makuuhuone löytyy myös yläkerrasta ja sen yhteydessä on tilava vaatehuone. Oma erillinen wc-tila täälläkin totta kai. Lisäksi on erillinen autokatos/varastorakennus, jossa on lämmitettyä tilaa myös käytössäsi. Rakennuksista on pidetty hyvää huolta. Vesikatot on uusittu ja peltikatteet on asennettu 2019. Lisäksi talon huoltomaalaus on suoritettu 2016. Sisätiloissa on tehty myös pintaremontteja. Tervetuloa tutustumaan tähän tyylikkääseen kotiin Kuljuun !