
Emilia Nikkilä
myyntipäällikkö, kiinteistönvälittäjä, LKV, KiLAT
emilia.nikkila@kiinteistomaailma.fi
puh. 0443481737
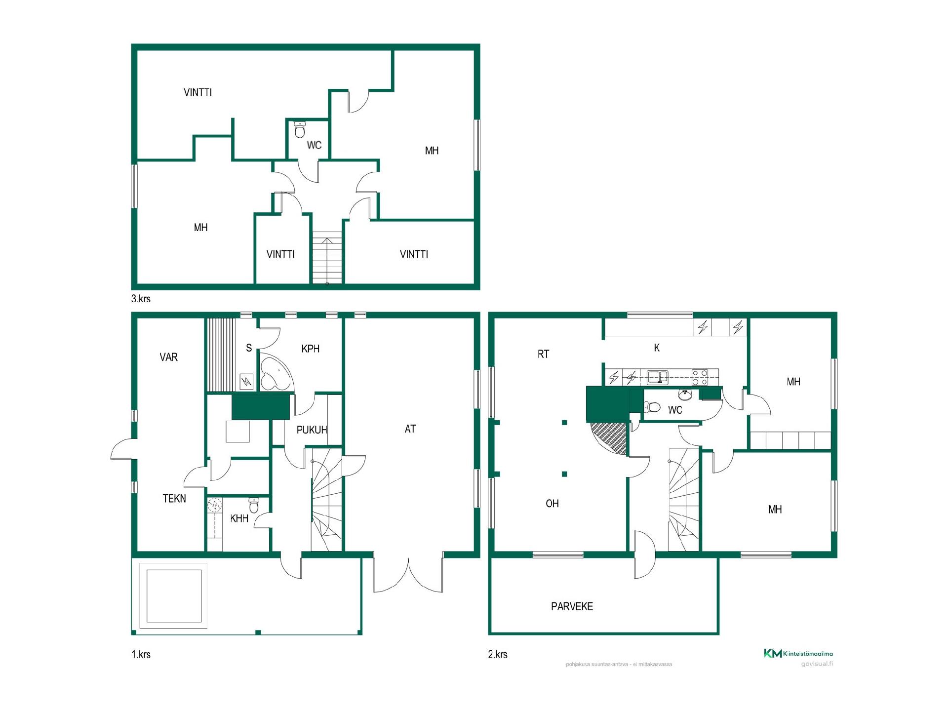
Tilava koti kolmessa kerroksessa Lempäälän Väinölässä! Tämän 180-neliön omakotitalon keskikerroksessa on olohuone takalla ja ilmalämpöpumpulla, ruokailutila sekä vuonna 2021 remontoitu keittiö. Lisäksi kaksi makuuhuonetta ja wc. Yläkerrassa on kaksi makuuhuonetta, wc ja erittäin säilytystilaa vinteillä. Alimmassa eli sisääntulokerroksessa sijaitsevat sauna, pukuhuone, vuonna 2013 remontoitu kylpyhuone kahdella suihkulla sekä sisäporeallas ja kodinhoitohuone. Jokaisessa kerroksessa on vessa. Alakerrassa on myös iso autotalli. Pihalta löytyy terassi sekä ulkoporeallas. Valmistumisvuoden 1961 jälkeen taloa on peruskorjattu runsaasti. Esimerkiksi käyttövesi- ja viemäriputket on uusittu vuonna 2013, lämmitysputket 2007, ulkovuoren eristerappaus 2008, ikkunoita uusittu 2012, katto remontoitu ja puhallusvillaa lisätty 2012 ja vesi-ilmalämpöpumppu asennettu 2022. Talossa on kolme ilmalämpöpumppua, jotka toimivat päälämmönlähteenä. Vaikka talo on iso, toteutunut energiankulutus on ollut isollakin perheellä vain 15 500 kWh/v. Myös energian kulutuksen seuraaminen hyvinkin tarkasti on tässä talossa otettu huomioon. 1 332 m²:n tontti on oma. Sääksjärven koulu on noin 2,5 km päässä, päiväkoteja löytyy lähialueelta ja Lempäälän keskustan palvelut ovat helposti saavutettavissa. Sijainti isojen teiden läheisyydessä mahdollistaa liikkumisen helposti. Varaa oma yksityisesittelysi ja tule tutustumaan. Tervetuloa!