Tarjouskauppa

Tiina Laulainen
kiinteistönvälittäjä, LKV, KiLEAT
tiina.laulainen@kiinteistomaailma.fi
puh. 050 597 1532
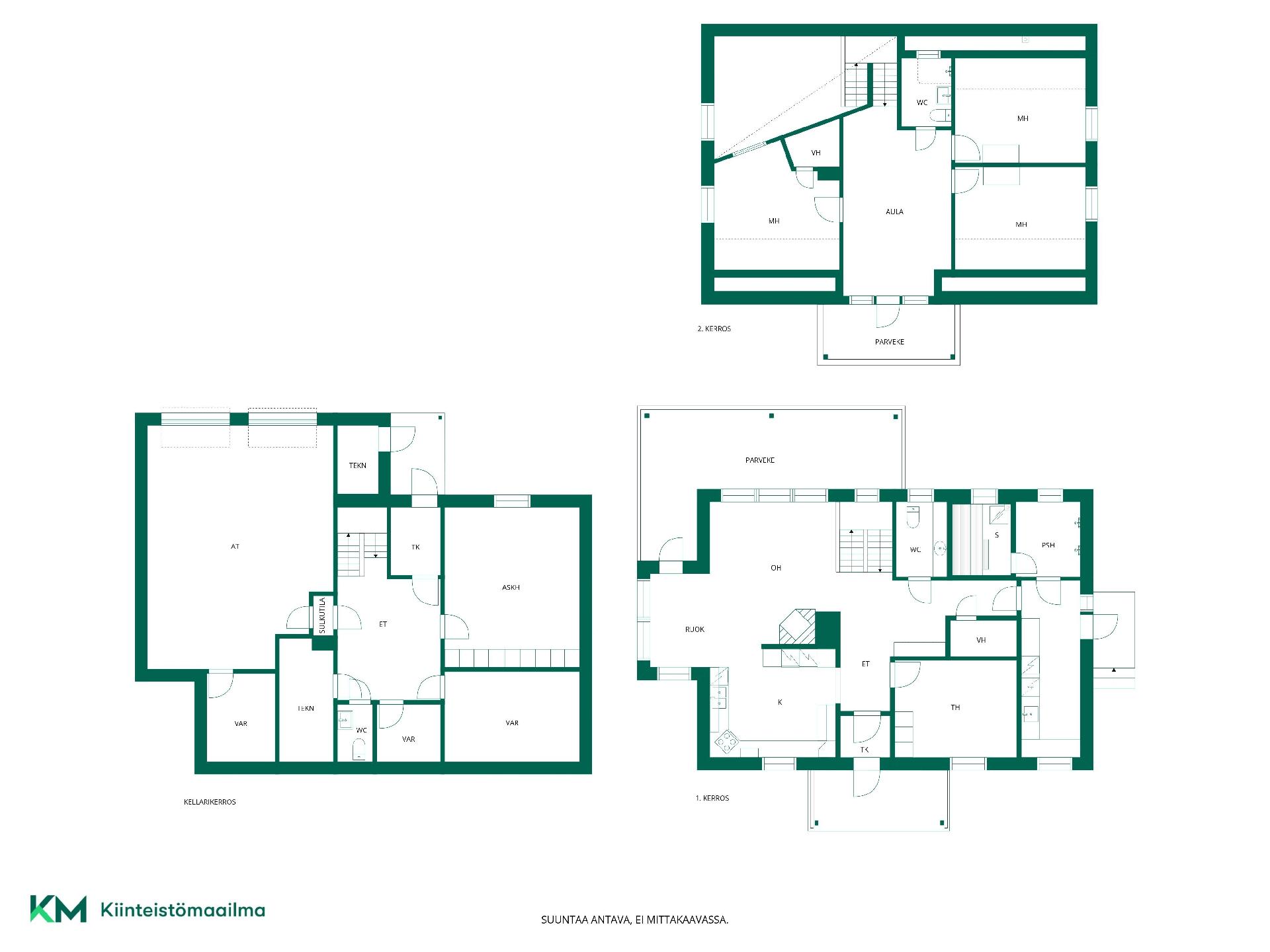
Rauhaa ja tilaa lapsiperheelle Kuljussa – kodikas Siporex-talo etsii uusia asukkaita! Kuljun rauhallisella ja vehreällä alueella, päättyvän tien varrella, sijaitsee tämä hyvin pidetty ja huolella rakennettu Siporex-koti, joka tarjoaa ihanteelliset puitteet lapsiperheen arkeen. Kolmikerroksinen omakotitalo on rakennettu rinnetontille, mikä tuo pihaan yksityisyyttä ja luonnonläheisyyttä. Talon 191 neliötä jakautuvat toimivasti neljään makuuhuoneeseen, tilavaan olohuoneeseen, erilliseen ruokailutilaan ja monipuolisiin arkea helpottaviin tiloihin, kuten kodinhoitohuoneeseen ja kahteen kylpyhuoneeseen. Kodissa on panostettu asumismukavuuteen: maalämpö, kaksi ilmalämpöpumppua ja varaava takka pitävät lämmityskulut kurissa ja sisäilman miellyttävänä. Olohuoneesta on käynti parvekkeelle, ja pihapiirissä odottavat grillikatos sekä puutarhavaja. Sähköauton latauspiste, kahden auton lämmin autotalli ja runsaasti säilytystilaa tekevät arjesta sujuvaa. Aurinkopaneelit ja taloakku tuovat energiatehokkuutta ja vastuullisuutta asumiseen. Lapsiperheelle tärkeät palvelut ovat lähellä: Kuljun koulu ja useat päiväkodit sijaitsevat alle kahden kilometrin säteellä, ja Ideaparkin monipuoliset palvelut ovat vain muutaman minuutin ajomatkan päässä. Luonnonystävälle Birgitan polku ja lähialueen retkikohteet tarjoavat upeat mahdollisuudet ulkoiluun. Tämä koti on pidetty hyvässä kunnossa ja siihen on tehty kattavasti huoltoja ja päivityksiä vuosien varrella. Kuntoarvion mukaan kiinteistö on erinomaisessa kunnossa, eikä kiireellisiä korjauksia ole. Jos etsit tilavaa, toimivaa ja rauhallista kotia perheellesi, tämä kohde kannattaa ehdottomasti nähdä paikan päällä!