
Päivi Metsälä
kiinteistönvälittäjä, LKV, KED, KiAT
paivi.metsala@kiinteistomaailma.fi
puh. 040 716 1788
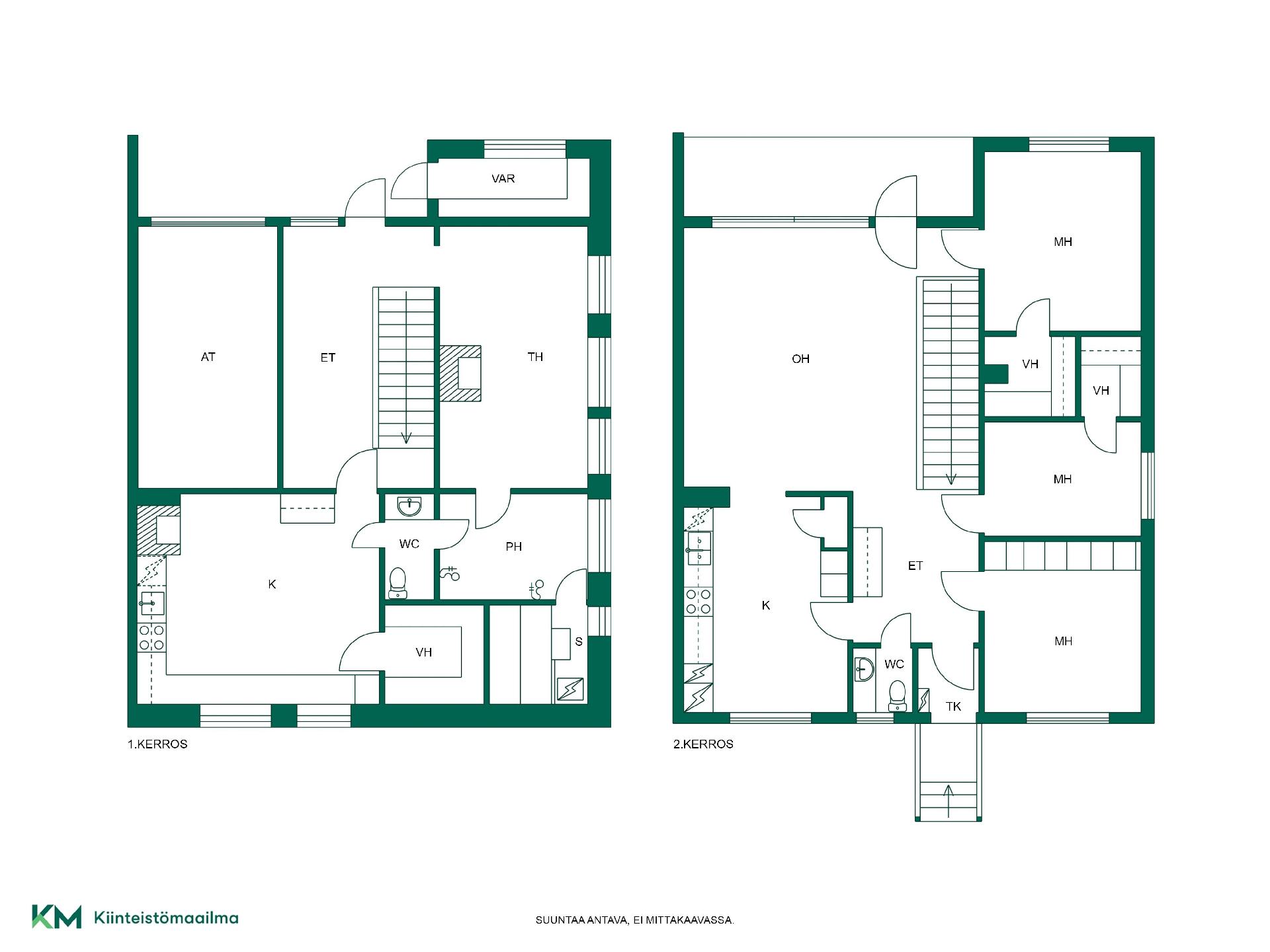
Paritalohuoneisto arvostetulla asuinalueella Pyhättömänmäellä kävelymatkan päässä keskustan palveluista. Tiloina keittiö, 3 makuuhuonetta, olohuone/ruokailutila, 2wc, takkahuone, askarteluhuone/khh, ph, s. 2 lämmintä varastoa ja autotalli. Vuosien varrella taloon uusittu käyttövesiputket/ samalla asennettu omat energiankulutusmittarit, katon pinnoitus tehty, etupihan soritus. Tässä asut kuin omakotitalossa, molemmilla asunnoilla oma rauha itsenäiseen ja rauhalliseen asumiseen. HUOM! Vaihdossa voidaan huomioida yksiö/kaksio Lahdesta tai kolmio/neliö Tampereelta.