
Juha Hirvonen
yrittäjä, kiinteistönvälittäjä , KTK, LKV
juha.hirvonen@kiinteistomaailma.fi
puh. 0400 829 075
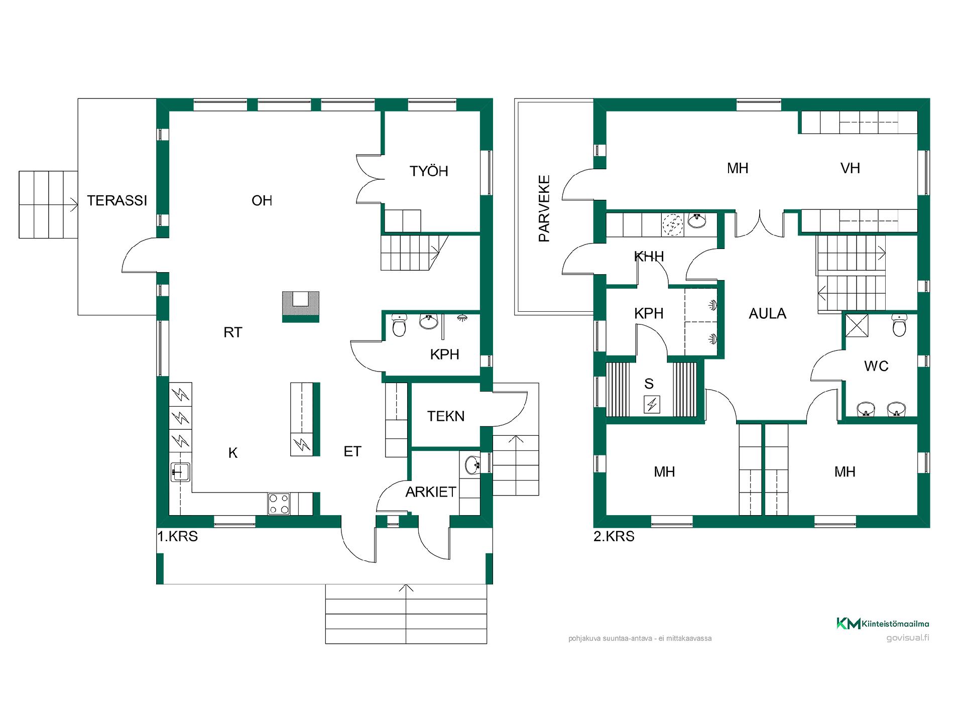
Huippusijainti arvostetussa Karistossa päättyvän kadun varrella. Tilava 1125m2 tontti rajoittuu metsään. Lapsiperheen tunnelmallinen unelmakoti isolla autokatoksella ja lämpimällä varastolla sekä leikkimökillä. Piha on aidattu lemmikkejä varten. Toimiva pohja ja isot ikkunat esteettömin metsänäkymin. Lämmitysmuotona turvallinen kaukolämpö vesikiertoisella lattialämmityksellä ja varaava takka sekä ilmalämpöpumppu yläkerrassa. Rauhallinen sijainti ja lyhyt sekä turvallinen koulumatka. Lenkkipolku ja frisbeegolf kenttä kulmilla. Tervetuloa tutustumaan ja ihastumaan elämäsi kotiin! Otathan yhteyttä minuun varataksesi esittelyajan ja autan mielelläni nykyisen asuntonne myynnissä.