
Annukka Hyttinen
kiinteistönvälittäjä, LKV, KED, KiAT
annukka.hyttinen@kiinteistomaailma.fi
puh. 050 565 1162
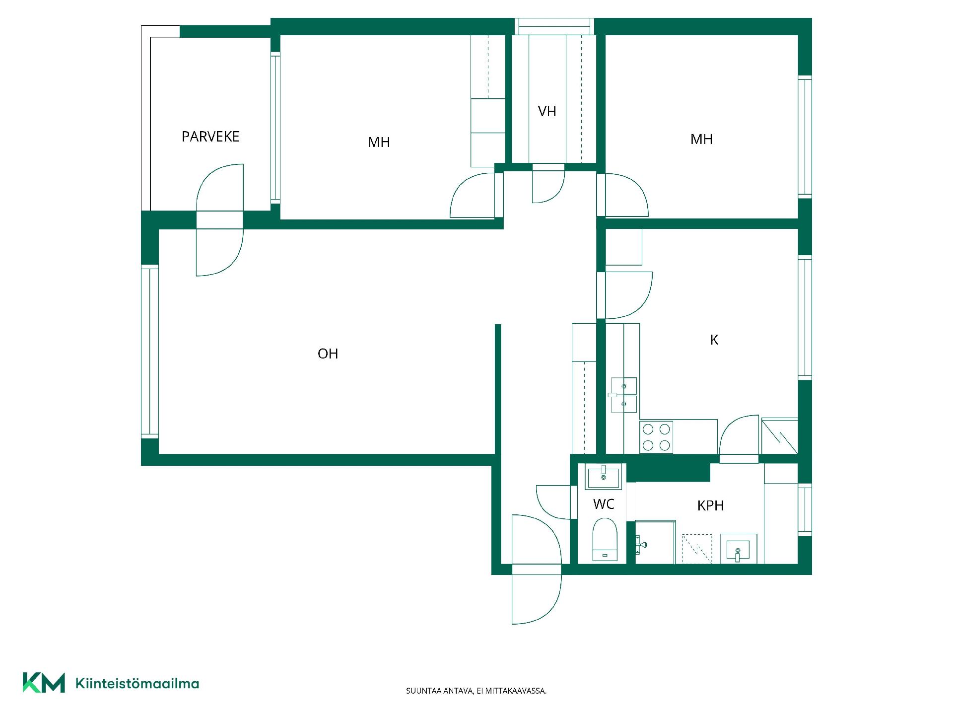
Valoisa kolmio upeilla kaupunkinäkymillä Tulikalliossa Etsitkö kotia, jossa arki kohtaa huikeat maisemat? Tämä kuudennessa kerroksessa sijaitseva 76-neliöinen kolmio tarjoaa esteettömät ja laajat yläilmanäkymät kaupungin ja Ahtialan suuntaan. Sijainti Tulikalliossa yhdistää rauhallisen asumisen ja sujuvat kulkuyhteydet – bussipysäkki on vain 400 metrin päässä ja lähikauppa S-Market Tonttila aivan kivenheiton päässä. Kodissa on toimiva pohjaratkaisu, jossa neliöt on käytetty harkiten. Vuonna 2014 asennettu parketti luo yhtenäisen ja lämpimän tunnelman olohuoneeseen sekä makuuhuoneeseen. Vuonna 2021 taloyhtiön toimesta täysin uudistettu kylpyhuone tuo asumiseen nykyaikaista mukavuutta ja huolettomuutta. Erillinen wc, käytännöllinen vaatehuone ja runsaat kaapistot tekevät arjesta sujuvaa. Asunto-Oy Tenavatanhua on aktiivinen ja hyvin hoidettu taloyhtiö, jossa on tehty kattavasti remontteja vuosien varrella, kuten viemäreiden sukitus ja julkisivuremontti. Hissitalon asukkaiden käytössä ovat muun muassa sauna ja jäähdytetty kellari. 1971 valmistuneessa yhtiössä on panostettu turvallisuuteen ja viihtyvyyteen esimerkiksi uusimalla porraskäytävät ja asentamalla valvontakamerat. Tämä koti odottaa uusia asukkaita, jotka arvostavat korkealla sijaitsevan asunnon valoa, avaruutta ja hyvää sijaintia. Tule ihastumaan paikan päälle – olisiko tässä sinun uusi kotisi? Ota yhteyttä ja sovitaan yksityisnäyttö, niin mennään yhdessä katsomaan, miltä nämä upeat maisemat näyttävät livenä!