
Annukka Hyttinen
kiinteistönvälittäjä, LKV, KED, KiAT
annukka.hyttinen@kiinteistomaailma.fi
puh. 050 565 1162
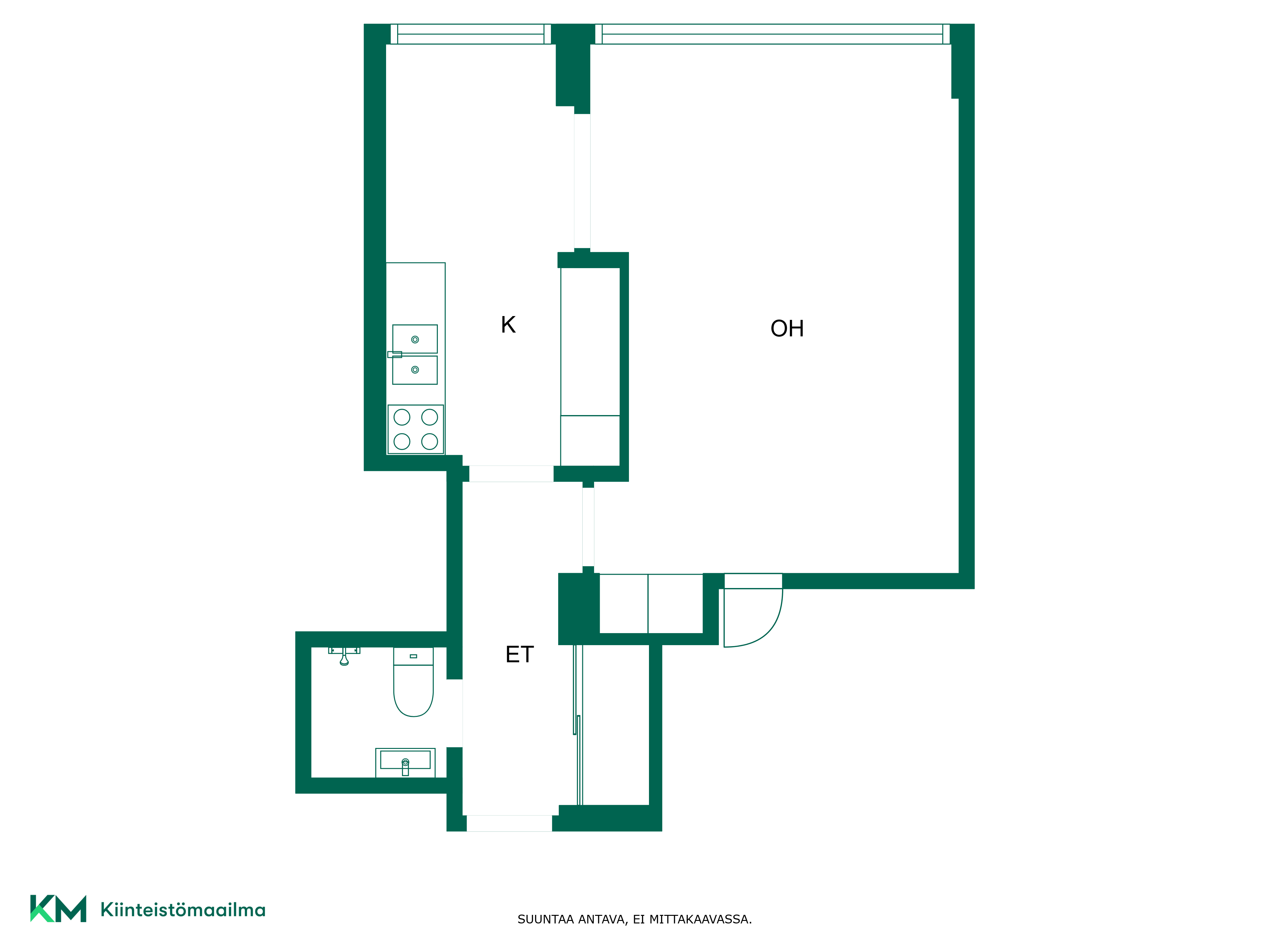
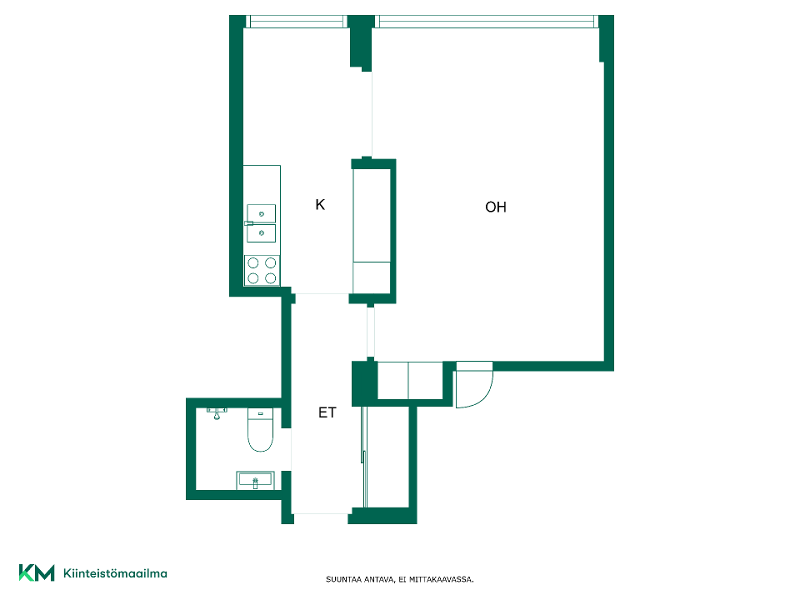
Valoisa vuokrattu yksiö Lahden ytimessä sijoitukseen! Tämä seitsemännen kerroksen yksiö tarjoaa upeat yläilmanäkymät suoraan Lahden keskustan sykkeessä. Mariankadulla asut vain kivenheiton päässä kaikista palveluista: kaupat, ravintolat ja julkisen liikenteen yhteydet ovat aivan ulottuvillasi. Sijainti takaa vaivattoman arjen, jossa kaupungin syke on läsnä, mutta oma koti on korkealla kaupungin melun yläpuolella. 38-neliöinen koti hurmaa valoisuudellaan ja käytännöllisellä pohjaratkaisullaan. Asunnon avokeittiö yhdistyy sujuvasti oleskelutilaan, luoden avaran ja viihtyisän tunnelman. Tilat on suunniteltu palvelemaan modernia kaupunkiasumista, ja seitsemäs kerros takaa rauhallisen ympäristön keskellä kaupunkia. Koti on pidetty hyvässä kunnossa, ja keittiö sekä asunnon pinnat on uusittu muutama vuosi sitten. Tyylikäs kylpyhuone on saneerattu putkiremontin yhteydessä, ja lattialämmitys tuo mukavuutta arkeen. Taloyhtiöstä on pidetty huolta kattavilla remonteilla, kuten käyttövesi- ja viemäriputkien uusimisella sekä hissien saneerauksella. Tämä koti sopii erinomaisesti sijoittajalle tai ensiasunnon ostajalle, joka arvostaa keskustan palveluiden läheisyyttä ja esteettömiä näkymiä. Tule kokemaan, kuinka mukavaa kaupunkielämä voi olla! Ota yhteyttä ja sovitaan esittely – tämä koti odottaa uutta asukastaan!