Myytävät asunnotKruunupyyPåras
OKTT1397823KruunupyyEUR22750Kokkola
3500OKTT

Västeråkersleden 1, Påras, Kruunupyy

22 750,00 €Velaton hinta
22 750,00 €Myyntihinta
3500Västeråkersleden 1, Påras, Kruunupyy
Västeråkersleden 1, Påras, Kruunupyy
Västeråkersleden 1, Påras, Kruunupyy
Västeråkersleden 1, Påras, Kruunupyy
Västeråkersleden 1, Påras, Kruunupyy
Västeråkersleden 1, Påras, Kruunupyy
Västeråkersleden 1, Påras, Kruunupyy

Kiinteistömaailma Kokkola

(Kokkolan Kodit Oy Ab)

Pitkänsillankatu 20 C L 16, 67100 Kokkola

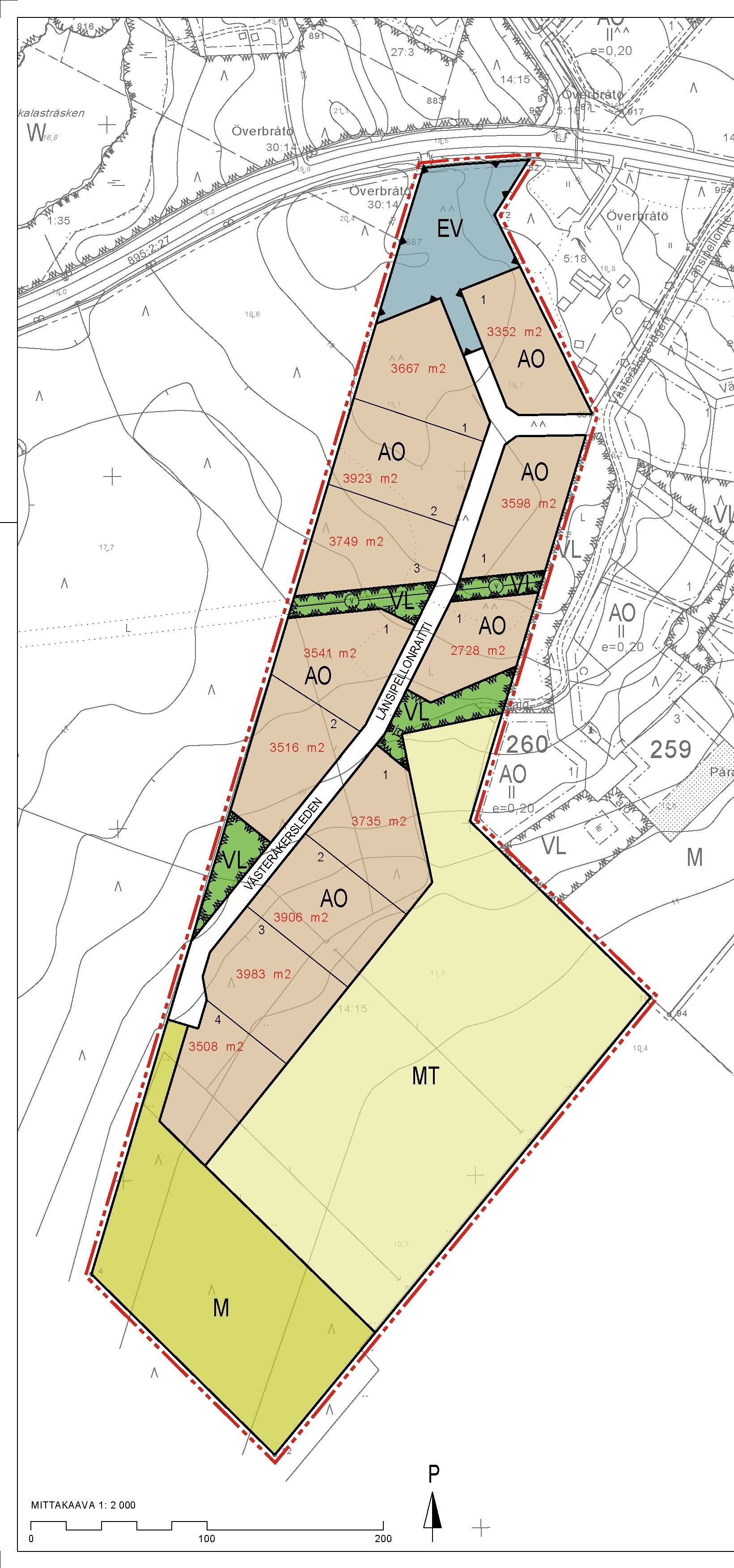
    Nyt on tilaisuus hankkia oma tontti rauhalliselta ja kauniilta alueelta Kruunupyyssä. Myynnissä on 12 kaavoitettua omakotitalotonttia, joiden koot vaihtelevat 2728–3983 m² välillä. Kaavoitettu alue on Söderpåraksentien varrella, Torgaretien risteyksen kohdalla. Alueen uusi tie (Länsipellonraitti) vedetään Länsipellontieltä. Tonteilla on rakennusoikeutta yhteensä 450 m² (350 m² + 100 m²), joten voit suunnitella tilavan kodin ja esimerkiksi erillisen talousrakennuksen tai autotallin. Kunta huolehtii tontille vesi-, sähkö- ja viemäriliittymien vetämisestä. Ostaja vastaa tien rakentamisesta tontille sekä lohkomiskustannuksista, sillä tontit myydään määräaloina. Tonttien lopullinen hinta määräytyy tontin koon mukaan, tonttien neliöhinta on 6,50€/m2 Tartu tilaisuuteen ja rakenna koti juuri sellaiseksi kuin haluat luonnonläheisessä ympäristössä. - Nu har ni möjlighet att köpa en egen tomt i ett lugnt och vackert område. Till salu finns 12 planlagda egnahemshus tomter, tomternas areal varierar mellan 2728–3983 m². Det planerade området ligger utmed Söderpårasvägen, mittemot korsningen till Torgarvägen. Den nya vägen (Västeråkersleden) till området dras från Västeråkersvägen. Tomterna har en byggrätt på totalt 450 m² (350 m² + 100 m²), vilket ger möjlighet att bygga ett rymligt hus och t.ex ett garage. Kommunen ansvarar för att dra vatten-, el- och avloppsanslutningar till tomtgränsen. Köparen ansvarar för att bygga vägen till tomten samt för styckningskostnaderna, eftersom tomterna säljs som outbrutna områden. Tomternas slutliga pris beror på storleken, tomternas kvadratpris 6,50€/m2. Ta chansen att bygga ert drömhem i en naturnära miljö.

    Sovi esittely

    Seuraava esittelyaika ei ole vielä sovittu.
    Ota yhteyttä ja sovi henkilökohtainen esittely!

    Myymälä

    Kiinteistömaailma Kokkola(Kokkolan Kodit Oy Ab)Pitkänsillankatu 20 C L 16, 67100 Kokkola
    Lue lisää

    Kiinteistön tiedot

    Kohdenumero1397823
    TalotyyppiOKT-tontti
    SijaintiVästeråkersleden 1, 68500 Kruunupyy
    KaupunginosaPåras
    ParvekeEi
    KäyttövesiKunnan vesijohto
    JätevesihuoltoKunnan
    VapautuminenSopimuksen mukaan

    Tontti

    Tontin pinta-ala3500 m²
    Tontin omistusOma
    KaavoitusAsemakaava
    Kaavoituksen lisätiedotLisätietoa kaavoituksesta antaa Kruunupyyn kunta
    Rakennusoikeus450 m² 350+100m2
    Maapohjan pinta-ala3500 m²

    Sijainti kartalla

    Hinta- ja asumiskustannukset

    Myyntihinta22 750,00 €
    Velkaosuus0,00 €
    Velaton hinta22 750,00 €

    Lisätiedot

    AsuntomyymäläKiinteistömaailma Kokkola
    Kokkolan Kodit Oy Ab, Pitkänsillankatu 20 C L 16, 67100, Kokkola
    Puh.
    Lähetä sähköpostia
    VälittäjäOma välittäjäsi
    Ilmoitusta on katsottu436 kertaa
    Vastuullista välittämistä