
Krista Hakonen
yrittäjä, kiinteistönvälittäjä, LKV, LVV, KED, KiLAT, VuT
krista.hakonen@kiinteistomaailma.fi
puh. 0440355589
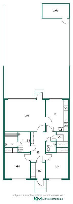
Tässä on sinulle viihtyisä rivitalokoti, jossa yhdistyy toimivuus ja luonnonläheisyys. Asunnossa on yhtenäiset lattiamateriaalit ja miellyttävä värimaailma. Heti sisään astuessa tilava tuulikaappi ja eteinen tarjoavat runsaasti säilytystilaa sekä käytännöllisyyttä. Molemmat makuuhuoneet ovat reilun kokoisia ja niiden kaapistot varmistavat, että säilytysratkaisut ovat kunnossa. Olohuone on iso ja sieltä on pääsy suojaisalle, metsään rajoittuvalle takapihalle. Erillinen keittiö on kodin sydän, jossa arjen kokkailu sujuu mukavasti. Samalla olohuone säilyy rauhallisena tilana esimerkiksi television katselulle. Asunnon käytännöllisyyttä korostuu erillisessä vessassa, vaatehuoneessa sekä 2023 remontoidussa kylpyhuoneessa ja saunassa. Helppoutta asumiseen tuo asuntokohtainen katospaikka sekä hyvin hoidettu taloyhtiö, jossa suuria remontteja on jo tehty. Sovi oma esittelyaikasi, Krista Hakonen +358 44 035 5589 krista.hakonen@km.fi Löydät meidät somesta: IG: @kiinteistomaailma.kotka Facebook: Kiinteistömaailma Kotka Tiktok: @kiinteistomaailmakotka