Tarjouskauppa

Satu Saranen
yrittäjä, kiinteistönvälittäjä, kaupanvahvistaja, LKV, KiAT, insinööri AMK
satu.saranen@kiinteistomaailma.fi
puh. 040 574 9615
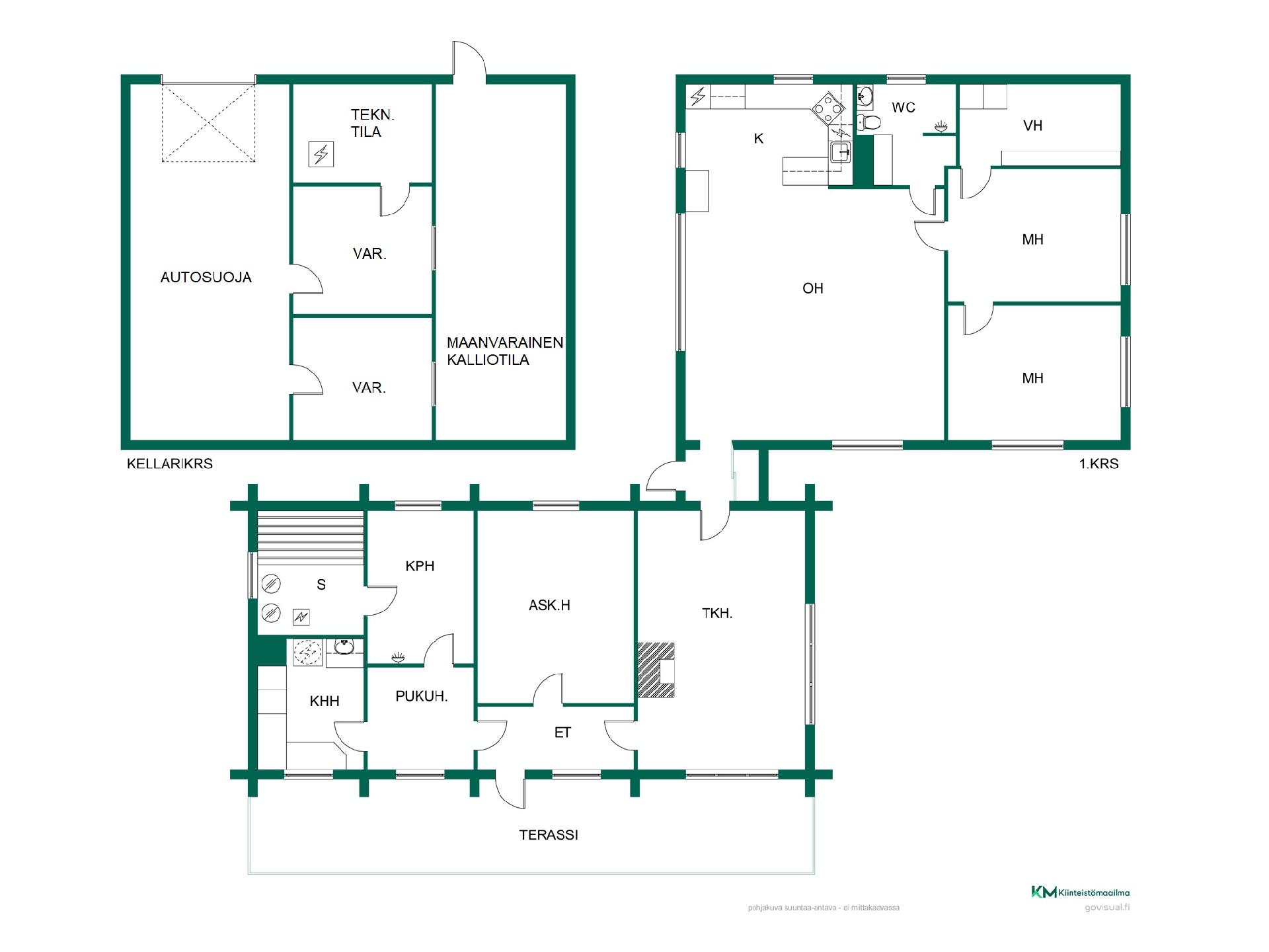
Tilava omakotitalo Klaukkalassa – omaa rauhaa ja tilaa elämälle Kielopolulla sijaitseva omakotitalo tarjoaa 148 m² asuintilaa yhdessä tasossa sekä kellarikerroksen, jossa autotalli ja varastotilat. Tontti on reilun 2300 m² kokoinen, joten tilaa riittää niin pihapiirin viihtyisyyteen kuin harrastuksiin. Talossa on neljä huonetta, keittiö, takkahuone, saunaosasto, kodinhoitohuone ja erillinen wc – tilat, joista voi rakentaa juuri omannäköisen kokonaisuuden. Pihapiirissä on autokatos ja varastorakennus, ja ympäristö tarjoaa rauhallisen sijainnin lähellä Klaukkalan palveluita. Koulu ja päiväkoti ovat kävelyetäisyydellä, ja liikenneyhteydet sujuvat helposti niin omalla autolla kuin julkisilla kulkuvälineillä. Tämä kiinteistö on tilaisuus luoda oma koti tilavassa ympäristössä, jossa yhdistyvät hyvä sijainti ja monipuoliset tilat. Sovi oma esittelyaikasi ja tutustu mahdollisuuksiin!