
Mira Milan-Harmia
kiinteistönvälittäjä, LKV, LVV, KED
mira.milan@kiinteistomaailma.fi
puh. 0400 292 007
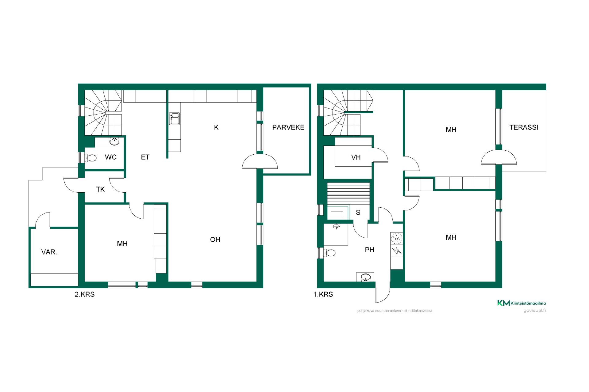
Valoisa huoneisto paritaloyhtiössä Kirkkonummen Neidonkalliossa! Tämä elegantti ja toimiva koti tarjoaa täydelliset puitteet viihtyisään arkeen. Vuonna 2008 valmistuneessa yhtiössä sijaitseva koti hurmaa avaruudellaan ja käytännöllisyydellään. Asunnon sydämenä toimii vuonna 2019 uusittu tyylikäs Noblessa-keittiö, joka yhdistyy saumattomasti avaraan olohuoneeseen. Täältä käynti myös katetulle eteläparvekkeelle. Pohjaratkaisu on suunniteltu palvelemaan perheen arkea: olohuone, kolme makuuhuonetta, vaatehuone ja erillinen wc tuovat mukavuutta asumiseen. Rentoutumisesta huolehtii oma sauna, jonka lauteet ja kiuas on uusittu vuonna 2021. Lattialämmitys kylpyhuoneessa, wc:ssä ja tuulikaapissa lisää asumismukavuutta entisestään. Ilmalämpöpumppu pitää sisälämpötilan miellyttävänä ympäri vuoden. Tämän kodin kruunaa aidattu L-muotoinen suuri eteläpiha. Puistomaisissa pientalomaisemissa sijaitseva koti on rauhallinen keidas, jossa on tilaa nauttia ulkoilmasta aivan omassa rauhassa. Myös saunaosastolta oma käynti pihalle vilvoittelemaan. Neidonkallion sijainti on erinomainen. Kattavat palvelut, kuten kirjasto, uimahalli ja hyvinvointikeskus, ovat lyhyen matkan päässä. Kouluja sekä päiväkoteja on lähistöllä. Hyvät bussiyhteydet sujuvoittavat liikkumista. Hyvin hoidettu taloyhtiö pitää huolta rakennuksistaan suunnitelmallisesti. 2025 suoritettu kuntotarkastus antaa mielenrauhaa. Asunnolle kuuluu kattavat säilytystilat sekä autokatospaikka. Sähköauton lataaminenkin on mahdollista. Tule ihastumaan tähän kodikkaaseen kokonaisuuteen. Varaa sinulle sopiva esittelyaika!