
Harri Kalliovalkama
yrittäjä, toimitusjohtaja, LKV, KiAT
harri.kalliovalkama@kiinteistomaailma.fi
puh. 0445044507
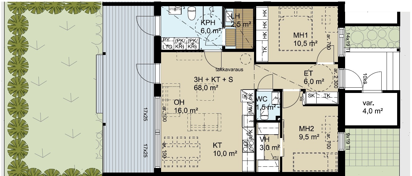
Uusi kotisi on valmistunut omalle tontille Kangasalan kauniiseen harju- ja järvimaisemaan lähelle kaupungin keskustaa! Asunto Oy Kangasalan Auringonkehrän 4 taloa valmistuivat viime vuoden joulukuussa. Lämmitysmuotona on luotettava ja energiatehokas kaukolämpö ja asunnoissa on viihtyvyyttä tuova vesikiertoinen lattialämmitys. Yhtiöllä on oma tontti joten eipä tarvitse murehtia tulevista vuokrankorotuksista. Asunnon lisäksi voit ostaa autokatososakkeen tai pihapaikan. Autopaikoille on asennettu mahdollisuus sähköajoneuvon lataukseen (3,6 kW) tai auton lämmitykseen. Suojaisalta pihalta löytyy leikki- ja oleskelualue. Tämän yksitasoisen kodin huonekorkeus on jopa yli kolmen metrin! Avaraan olohuone-avokeittiöön tulvii valoa korkeasta ikkunaseinästä. Takapihan koko asunnon levyiselle katetulle terassille on kulku sekä olohuoneesta että saunaosastolta. Arjen sujuvuuden takaa 2 wc:tä, kodinhoitotila kylpyhuoneessa ja vaatehuone toisessa makuuhuoneessa. Molemmat makuuhuoneet ovat erittäin mukavan kokoisia (10,5 m2 ja 9,5 m2). Materiaali- ja kalustevalinnoissa on painotettu arjen helppoutta. Järkevät, kestävät ja helppohoitoiset materiaalit sekä kalusteet ovat osa huolettoman asumisen viehätystä. Seesteinen ja tasapainoinen värimaailma luo otollisen pohjan omien sisustusunelmien toteuttamiselle. Alue tarjoaa erinomaiset puitteet. Kotipihalta näet Kirkkoharjun upeat ja kutsuvat ulkoilumaastot. Kangasalan keskustan kauppoihin, uimahalliin ja Kulttuuritalon elokuviin tai konsertteihin on vain reilu kilometri. Tervetuloa toteamaan Auringonkehrän tunnelma paikan päälle!