
Harri Kalliovalkama
yrittäjä, toimitusjohtaja, LKV, KiAT
harri.kalliovalkama@kiinteistomaailma.fi
puh. 0445044507
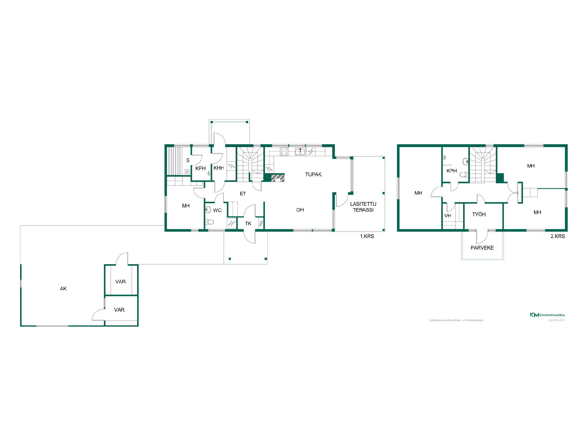
Kodikas kaksi kerroksinen omakotitalo Kortekankaalla! Tämä vuonna 2002 käyttöönotettu koti on omalla 490 m2 tontilla. Talossa on kiva tupakeittiö olohuone yhdistelmä josta suora yhteys 2022 rakennetulle isolle lasitetulle terassille. 4 makuuhuonetta ja työhuone tarjoaa tilat koko perheelle. WC ja suihku löytyy molemmista kerroksista. Kodinhoitohuone helpottaa arjen pyörittämistä. Pihasta löytyy kahden auton autokatos, jonka yhteydessä on lämmin ja kylmä varasto. Lisäksi pihassa on varastovaja. Kortekangas on vuosituhannen vaihteessa rakentunut suosittu asuinalue. Alakouluihin ja päiväkoteihin runsas 2 km:n matka. Harjun ulkoilumaastot kävelyetäisyydellä. Hyvät kulkuyhteydet niin Kangasalan kuntakeskuksen kuin Lentolan ja Tampereen palveluihin. Katso kohteen video, se kertoo enemmän kuin sanat! Olisiko tämä sinun uusi kotisi? Tilaa oma yksityisesittelysi.