
Päivi Blom-Rinne
myyntipäällikkö, kiinteistönvälittäjä, YKV, LKV, KiLat
paivi.blom@kiinteistomaailma.fi
puh. 045 238 9335
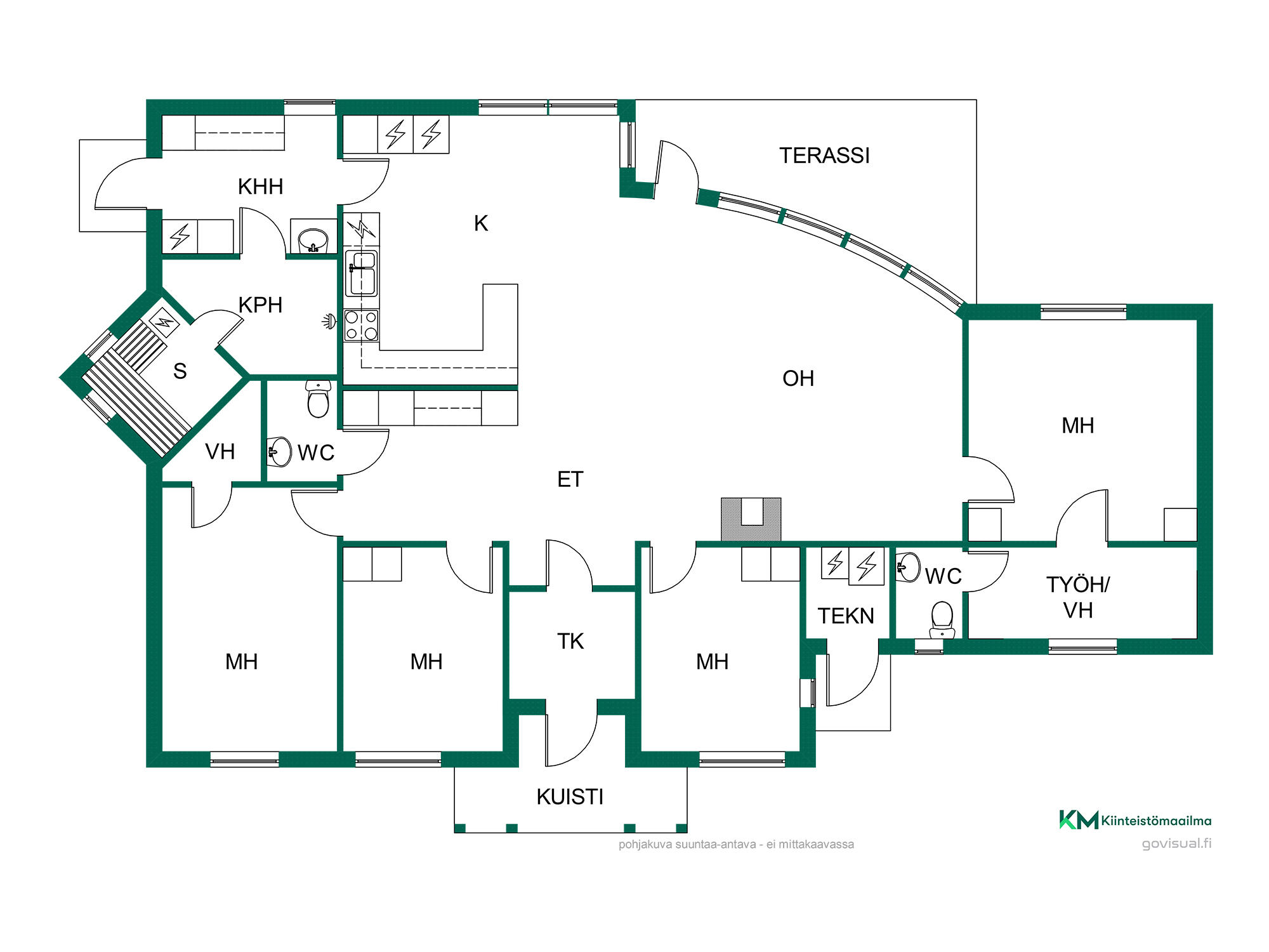
Tyylikäs Kastelli-koti Vatialassa – 155,5 m² tilaa arkeen ja juhlaan! Tervetuloa tutustumaan tähän upeaan, vuonna 2012 valmistuneeseen Kastelli-taloon Kangasalan Vatialassa! Tämä omakotitalo tarjoaa modernia asumista rauhallisella ja arvostetulla alueella, vain kivenheiton päässä Tampereelta. Neljä tilavaa makuuhuonetta tarjoavat runsaasti vaihtoehtoja perheen tarpeisiin – lastenhuoneiksi, työtiloiksi tai vierashuoneiksi. Kaksi erillistä WC:tä tekevät arjesta sujuvaa ja mukavaa. Oma tontti tarjoaa edullista asumista ja mahdollisuuden nauttia omasta pihasta – terassi on täydellinen paikka kesäpäivien viettoon. Olohuoneessa korkea huonetila tuo avaruutta ja valoisuutta, ja se yhdistyy saumattomasti avokeittiöön, jossa Puustellin laadukkaat kalusteet ja tyylikkäät kivitasot tekevät ruoanlaitosta nautinnon. Vatiala on ihanteellinen asuinalue – rauhallinen mutta silti lähellä kaikkea. Tampereen keskusta on vain lyhyen ajomatkan päässä, ja alueelta löytyy erinomaiset palvelut, koulut, päiväkodit sekä ulkoilumaastot. Koti sijaitsee Sähköenergia Tampereen Sähkön verkon alueella, joka luotettavaa ja paikallista energiaa. Aurinkopaneelit on asennettu 4/2023, jonka energia hyödynnettävissä omaan käyttöön ja myyntiin. Tämä koti on valmis toivottamaan uudet asukkaat tervetulleiksi – varaa oma esittelyaikasi ja ihastu!