Tarjouskauppa

Riikka Lyly
Yrittäjä, kiinteistönvälittäjä, LKV, LVV, tradenomi (AMK)
riikka.lyly@kiinteistomaailma.fi
puh. 044 300 8003
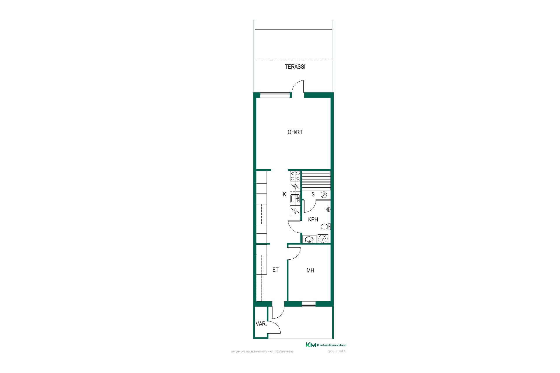
SAUNALLINEN KAKSIO LOISTOSIJAINNILLA HIEKKASÄRKKIEN YTIMESSÄ Tämä luhtitalon alakerran lomahuoneiston sijainti on mitä parhain, sillä Hiekkasärkkien palvelut, hiihtoladut, ravintolat ja uimahalli, sekä merenranta ovat kävelyetäisyydellä. Kaksion olohuone/ruokailutilan ikkunasta ja tilavalta terassilta avautuu rauhoittava näkymä mäntymetsään. Keittiö on tilava ja hyvin varusteltu ja kaappitilaa löytyy runsaasti sekä keittiöstä että eteisestä. Kylpyhuone/wc on ajaton ja tummanpuhuva sauna tunnelmallinen. Huoneistolle kuuluu pistokkeellinen autopaikka 2015 valmistuneen taloyhtiön asflatoidulla piha-alueella, sekä varasto huoneiston suojaisan ulko-oven vieressä. Taloyhtiön lämmitysmuotona on kaukolämpö ja saatavilla myös valokuituyhteys. Asunto on vuokrattu toistaiseksi voimassa olevalla vuokrasopimuksella (vuokra 640€/kk + vesi, sähkö & mahd. kuidun palvelusopimus), joten asunto on helppo vaihtoehto esimerkiksi asuntosijoittajalle. Sopii erinomaisesti myös omaksi vapaa-ajan viettopaikaksi. Voisiko tämä olla juuri se asunto mitä etsit? Yhteydenotot ja esittelyt: Riikka Lyly p. 044 3008 003 riikka.lyly@kiinteistomaailma.fi