
Visa Suojanen
yrittäjä, kiinteistönvälittäjä, kaupanvahvistaja, LKV
visa.suojanen@kiinteistomaailma.fi
puh. 040 352 4293
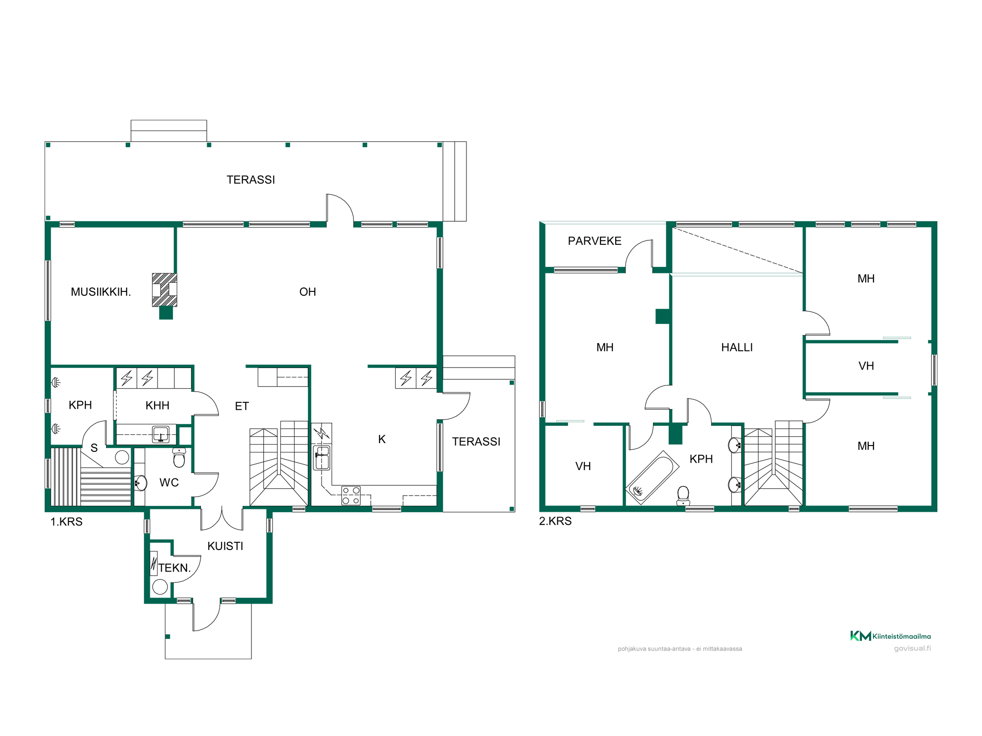
Moderni ja avara koti halutulla Salmirannan asuinalueella! Upea kaksikerroksinen omakotitalo sijaitsee halutulla alueella Salmirannassa. Päijänteen välittömässä läheisyydessä oleva talo on hyvin pidetty ja vapautuu nyt ensimmäisiltä omistajiltaan. Puurunkoinen ja julkisivultaan rapattu talo on valmistunut joulukuussa 2009. Kodin tilat ovat kahdessa kerroksessa ja pohjaratkaisu on arjessa toimiva. Sisääntulokerroksessa on todella tilava eteisaula, joka helpottaa etenkin lapsiperheen arkea. Samassa kerroksessa on kodinhoito- ja pesutilat, takkahuone sekä olohuoneen, ruokailutilan ja keittiön muodostama suuri oleskelutila. Olohuoneessa on suuret ikkunat ja tila on osin avoinna yläkertaan, minkä ansiosta tila on todella valoisa. Keittiöstä on käynti terassille joka avautuu osin etelän suuntaan. Yläkerrassa on suuri aulatila, joka palvelee hyvin vaikkapa televisionkatseluhuoneena. Yläkerran kolme makuuhuonetta ovat kaikki tilavia ja säilytystilaa on mukavasti kahden vaatehuoneen ansiosta. Master bedroom on kooltaan noin 16 neliömetriä ja huoneesta on käynti parvekkeelle, josta aukeaa maisemat aina Päijänteelle asti. Yläkerrassa on myös oma kylpyhuoneensa. Talo lämpiää kaukolämmöllä ja lämpö jaetaan vesikiertoisin lattialämmityksin. Olohuoneessa on myös varaava takka lämmitystä tukemassa ja tunnelmaa luomassa. Oma tontti on kooltaan 1 310 neliömetriä ja rajautuu toiselta sivurajaltaan kaupungin puistoalueseen. Pihapiiri on suojaisa ja pihalta löytyy muun muassa kirsikkapuita, marjapensaita, pensasmustikkaa sekä viihtyisä noin 10 neliömetrin suuruinen lasinen huvimaja, joka kutsuu nauttimaan aikaisin keväästä aina pitkälle syksyyn. Kiinteistöllä on päärakennuksen lisäksi kahden auton autokatos, jonka yhteydessä on noin 30 neliömetrin suuruinen lämmin varastotila. Mahdollisuus on ostaa myös laituripaikkaosake viereisestä venelaiturista. Soita tai kirjoita ja sovi oma yksityisesittelyaikasi välittäjältä!