
Sanna Hotanen
yrittäjä, toimitusjohtaja, kaupanvahvistaja, LKV
sanna.hotanen@kiinteistomaailma.fi
puh. 0405818201
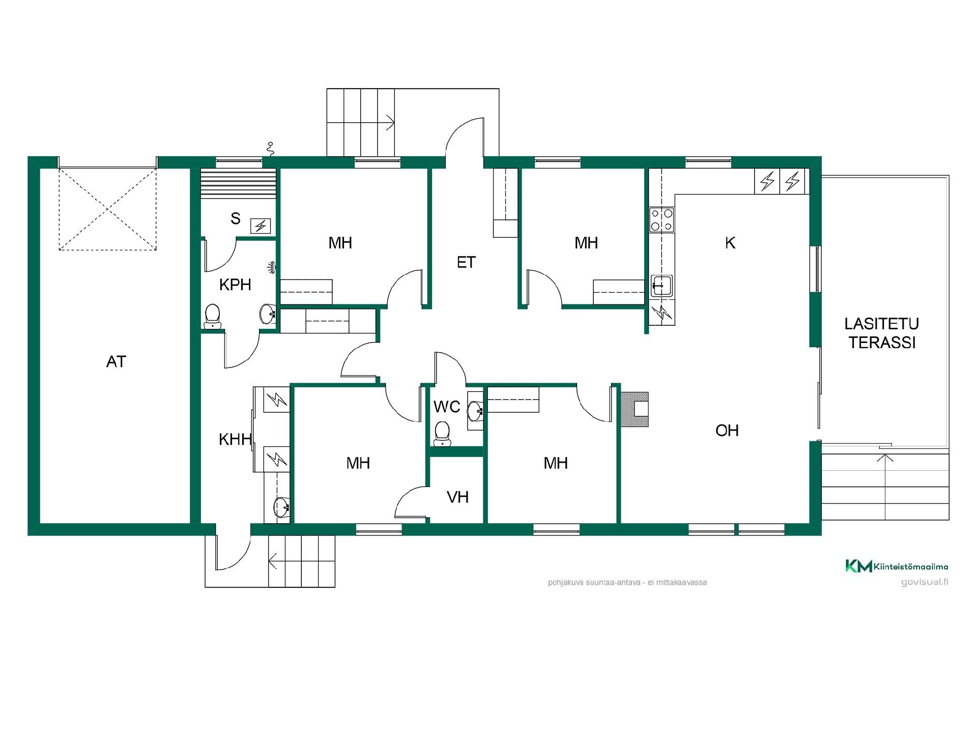
Uudehko omakotitalo erinomaisella sijainnilla Tikassa! Tikan halutulla pientaloalueella sijaitsee tämä vuonna 2023 valmistunut, yhdessä tasossa oleva omakotitalo. Koti tarjoaa valoisat ja toimivat tilat arkeen – täydellinen valinta perheelle, joka arvostaa modernia mukavuutta ja helppoa asumista. Kodissa on neljä tilavaa makuuhuonetta, jotka soveltuvat erinomaisesti niin perheenjäsenille kuin työ- tai harrastehuoneiksi. Avara olohuoneen ja keittiön muodostama oleskelutila toimii kodin sydämenä, ja suuret ikkunat tuovat tilaan runsaasti luonnonvaloa. Olohuoneesta avautuu käynti koko talon päädyn mittaiselle lasiterassille, joka tarjoaa viihtyisän lisätilan ympäri vuoden. Arkea helpottavat kaksi wc:tä, tilava kodinhoitohuone sekä hyvät säilytystilat. Talon yhteydessä oleva lämmin ja tilava autotalli lisää käyttömukavuutta. Maalämmöllä lämpiävä talo sijaitsee omalla 688 neliömetrin tontilla, jonka pihapiiri on tasainen ja pääosin nurmetettu. Asumiskustannukset pysyvät edullisina, sillä vuotuinen sähkönkulutus on ollut noin 9 000 kWh. Kesähelteillä asumismukavuutta lisää viilentävä ilmalämpöpumppu. Tikka on alueena erityisesti lapsiperheiden suosiossa. Kävelyetäisyydeltä löytyvät päiväkodit, koulut, lähikauppa, uimaranta sekä monipuoliset ulkoilumaastot. Kaikki tärkeä on lähellä, ja alueen rauhallinen pientalotunnelma tekee asumisesta miellyttävää. Soita tai kirjoita ja sovi oma esittelyaikasi!