
Sanna Hotanen
yrittäjä, toimitusjohtaja, kaupanvahvistaja, LKV
sanna.hotanen@kiinteistomaailma.fi
puh. 0405818201
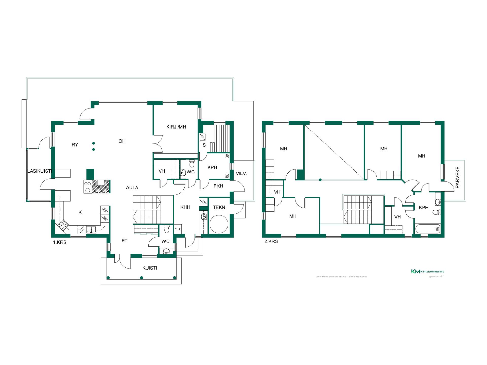
Upea, omarantainen kivitalo Palokassa – tilaa, laatua ja järvimaisemia! Alvajärven rannassa, päättyvän kadun varrella sijaitseva omarantainen kivitalo tarjoaa laadukasta asumista. Tämä koti vapautuu nyt ensimmäisiltä omistajiltaan. Vuonna 2000-2001 valmistuneessa kodissa yhdistyvät kestävä rakentaminen ja terveellinen asuminen: kivitalon vankka rakenne sekä rossipohja luovat miellyttävän ja turvallisen sisäilman. Kodin tunnelma on lämmin ja kotoisa, ja suuret ikkunat tuovat runsaasti luonnonvaloa sisätiloihin sekä avaavat kauniit näkymät pihalle ja järvelle. Kodin sydämen muodostavat alakerran avarat ja osin kahden kerroksen korkuiset oleskelutilat. Keittiössä on todella reilusti lasku- ja säilytystilaa, ja se soljuu hyvin yhteen ruokailutilan ja olohuoneen kanssa. Olohuoneessa on huonekorkeutta kahden kerroksen verran, ja ikkunoista aukeaa upea maisema järvelle. Yläkerrassa on neljä makuuhuonetta, kylpyhuone sekä runsaasti säilytystilaa. Aulaan tulvii valoa korkean tilan ja suurten ikkunoiden ansiosta. Arkea helpottamassa ovat iso kodinhoitohuone, hyvät pesu- ja saunatilat pukuhuoneineen sekä kolme wc:tä. Omalla 1 788 neliömetrin suuruisella tontilla on tilaa mukavasti. Piha on kauniisti laitettu ja on upean aurinkoinen. Oma hiekkaranta syvenee loivasti, joten se sopii hyvin myös pienille lapsille. Piharakennuksessa on autokatos kahdelle autolle ja reilusti varastotilaa. Sijainti yhdistää luonnon rauhan ja arjen helppouden. Palokan monipuoliset palvelut löytyvät 2,5–3,5 kilometrin säteeltä, ja Jyväskylän keskustaan ajaa noin 12 minuutissa. Soita tai kirjoita ja sovi oma yksityisesittelyaikasi välittäjältä!