
Sanna Hotanen
yrittäjä, toimitusjohtaja, kaupanvahvistaja, LKV
sanna.hotanen@kiinteistomaailma.fi
puh. 0405818201
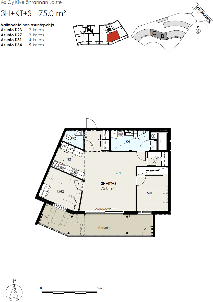
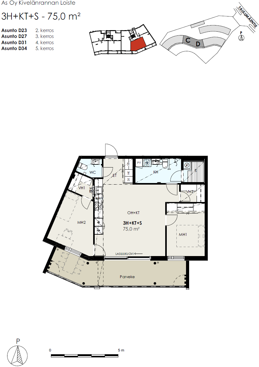
Tervetuloa Tuomiojärven upeisiin rantamaisemiin! Haaveiletko kodista järven rannalla, mutta silti lähellä keskustan palveluita? Asunto Oy Kivelänrannan Loiste yhdistää ainutlaatuisella tavalla luonnon rauhan ja kaupunkiasumisen mukavuuden. Uusi kotisi nousee Tuomiojärven rannalle – paikalle, jossa maisemat hivelevät silmää ja arki saa uudenlaista harmoniaa. Loiste tarjoaa koteja kompakteista ja toimivista kaksioista avariin 3-4 huoneen järvimaisemakoteihin. Pohjaratkaisut on suunniteltu huolella: tilankäyttö on tehokasta, luonnonvalo pääsee virtaamaan sisään suurista ikkunoista ja jokainen neliö on ajateltu asumisen ehdoilla. Oman tontin viihtyisä piha-alue liittyy saumattomasti viereiseen puistoon ja rantamaisemaan – täydellinen paikka hengähtää päivän keskellä. Pääset vaikuttamaan uuden kotisi varusteluun ja sisustukseen jo rakennusvaiheessa. Valittavanasi on sisustussuunnittelijan luomat kolme tyylikästä sisustuskokonaisuutta, joita voi myös yhdistellä oman maun mukaan. Laadukkaat kiintokalusteet ja ajaton, moderni ilme viimeistelevät kokonaisuuden. Valoisat oleskelutilat kutsuvat rentoutumaan. Järven puolen kodeissa olohuone jatkuu lasitetulle, koko asunnon levyiselle parvekkeelle – kesäisin täydellinen paikka aamukahville tai ilta-auringon ihailuun. Mukavuutta lisää kaukolämpö vesikiertoisella lattialämmityksellä, joka tuntuu erityisen miellyttävältä jalkojen alla. Autopaikat myydään erikseen ja ne on varustettu sähköauton kevytlatausmahdollisuudella. Kävelyetäisyydeltä löydät niin Seppälän monipuoliset palvelut kuin kaupungin keskustan – vain 1,8 km päässä kotiovelta. Tule valitsemaan oma unelmakotisi Kivelänrannasta – ota yhteyttä jo tänään!
Kohde on yhtiölainoitettu. Taloyhtiölainasta on vastuussa jokainen osakas. Jos lainaa koskevia pääomavastikkeita ei saada joidenkin asuntojen osalta muutoin perittyä, maksuvelvollisuus voi langeta viime kädessä muille osakkaille.