
Sanna Hotanen
yrittäjä, toimitusjohtaja, kaupanvahvistaja, LKV
sanna.hotanen@kiinteistomaailma.fi
puh. 0405818201
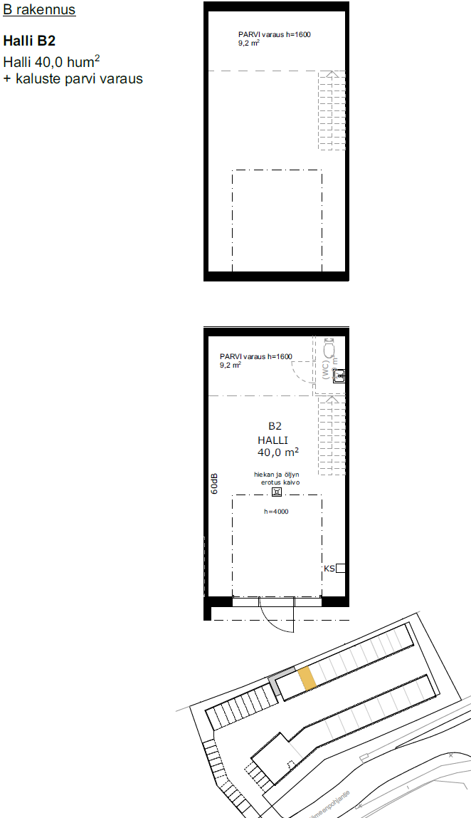
Erinomaiselle sijainnille Hämeenpohjantien varteen rakentuu moderni hallikiinteistö, joka tarjoaa monipuolisia ja muunneltavia halli- ja varastotiloja erilaisiin tarpeisiin! Tiloja on saatavilla pienistä varastoista suuriin, yli 200 m²:n hallitiloihin, ja nosto-ovelliset tilat on suunniteltu helposti muunneltaviksi ja tehokkaaseen käyttöön. Tarvitsetpa säilytystilaa tai tilaa yritystoimintaan, molemmat onnistuu. Mikäli tila tulee alvilliseen käyttöön, saa ostaja rakennuskustannuksista tehtävän alv-palautuksen itselleen. Valikoimasta löytyy muun muassa 60 m²:n tiloja, joihin sisältyy 10 m²:n parvi + wc, sekä 40 m²:n tiloja, joissa on valmius parvelle ja wc:lle. Lisäksi tarjolla on kompakteja 10 m²:n varastoja käyntiovella. Jokainen tila on suunniteltu toimivaksi ja helposti muokattavaksi käyttäjän tarpeiden mukaan. Perusvarusteluun kuuluu voimavirta, LED-valaistus, palosammutin, vesitiivis lattia, vesikiertoinen lattialämmitys sekä tilakohtainen sähkömittaus. Varustelutasoa voi täydentää esimerkiksi moottoroidulla nosto-ovella, käyntiovella, kylmällä vesipisteellä, wc:llä tai wc-varauksella, öljynerotuksellisella lattiakaivolla, pesumahdollisuudella, koneellisella poistoilmanvaihdolla sekä tilakohtaisella lämmönmittauksella. Kohde valmistuu joulukuussa 2026, joten nyt on oikea hetki varmistaa itsellesi tai yrityksellesi juuri sopiva tila näkyvältä ja helposti saavutettavalta paikalta.