
Jarmo Kinnunen
yrittäjä, toimitusjohtaja, LKV, julkinen kaupanvahvistaja
jarmo.kinnunen@kiinteistomaailma.fi
puh. 050 591 3333
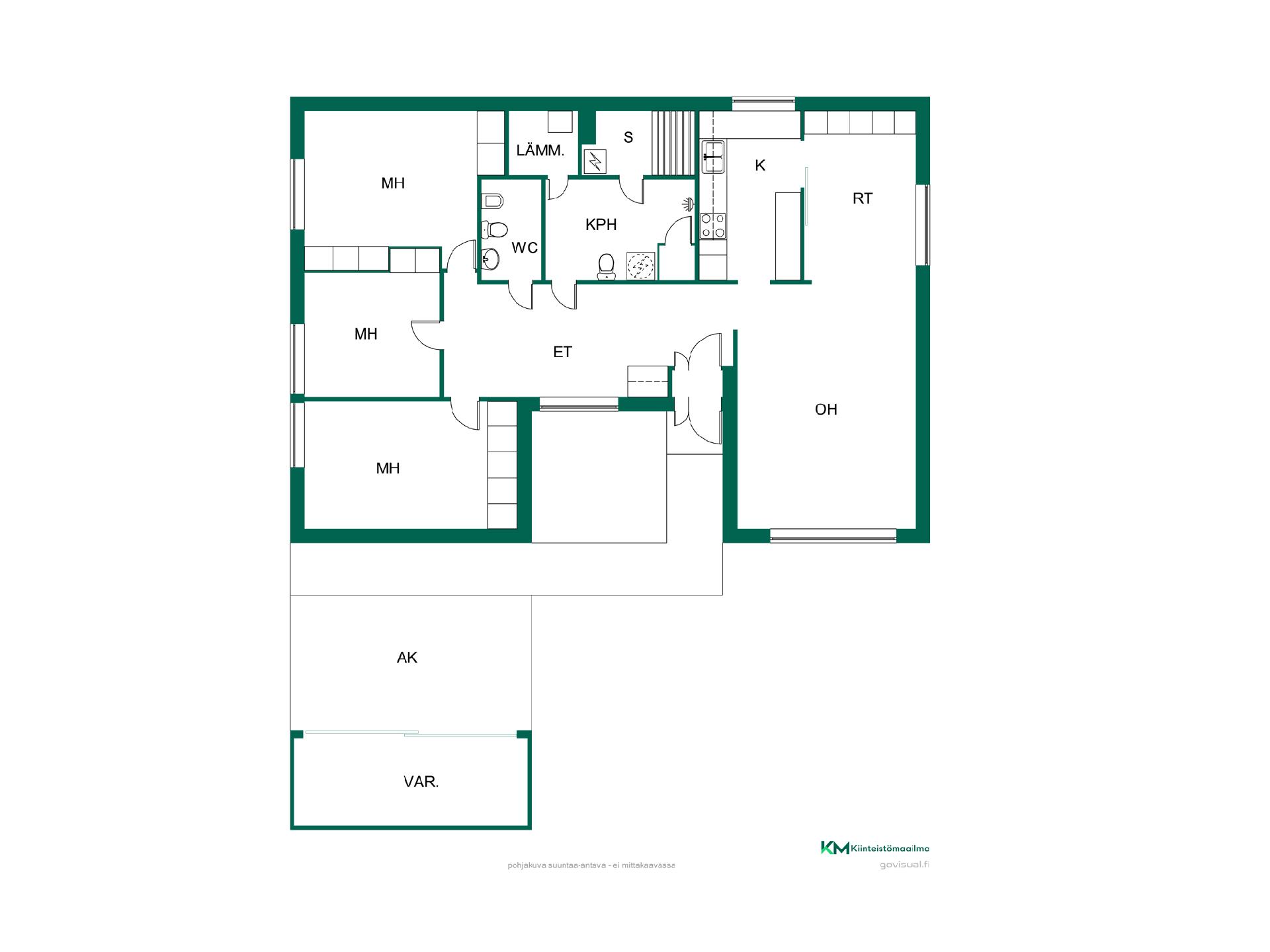
Tilava ja kodikas yksitasoinen koti Mutalan viihtyisällä alueella Vuonna 1971 valmistunut, tiilirakenteinen ja konesaumapeltikattoinen omakotitalo tarjoaa erinomaiset puitteet viihtyisään arkeen. Kodin asuinpinta-ala on 111 m², ja pohjaratkaisussa on neljä huonetta, keittiö sekä saunaosasto. Talo sijaitsee omassa rauhassaan vehreällä 720 m² vuokratontilla, jonka vuokrasopimus on voimassa vuoden 2040 loppuun. Sisätiloissa huomiota herättää erityisesti valoisa olohuone, joka yhdistyy ruokailutilaan muodostaen avaran ja monikäyttöisen kokonaisuuden. Keittiö on uusittu vuonna 2002 ja tarjoaa runsaasti säilytys- ja työtilaa. Kylpyhuone ja sauna ovat läpikäyneet perusteellisen remontin vuonna 2010, ja niissä on laadukkaat pintamateriaalit sekä lämmin, kutsuva tunnelma. Makuuhuoneet ovat tilavia ja rauhallisia, ja säilytystilaa löytyy kiinteiden kaapistojen muodossa. Rakennusta on huollettu säännöllisesti: sadevesikourut ja syöksytorvet on uusittu, julkisivun puuosia korjattu ja sokkeli kunnostettu, vesikatto huoltomaalattu sekä autotallin seinä uusittu. Lämmityksestä huolehtii ilmavesilämpöpumppu ja ilmanvaihto on painovoimainen. Autolle löytyy kätevästi oma autotalli. Sijainti on erinomainen: S-market sijaitsee vain noin 350 metrin päässä, lähin bussipysäkki on noin 600 metrin päässä, ja Mutalan kouluun on matkaa noin 2 kilometriä. Päiväkoteja löytyy lähialueelta noin 2,5 kilometrin säteellä. Vehreä pientaloalue tarjoaa turvallisen ja viihtyisän ympäristön niin lapsiperheille kuin rauhallisempaa eloa kaipaaville. Tämä koti yhdistää tilavan ja toimivan pohjaratkaisun, hyvin hoidetut rakenteet sekä viihtyisän sijainnin — erinomainen valinta uudelle omistajalleen!