
Tiina Liukkonen
, LKV, kiinteistönvälittäjä, kaupanvahvistaja
tiina.liukkonen@kiinteistomaailma.fi
puh. 050 5550540
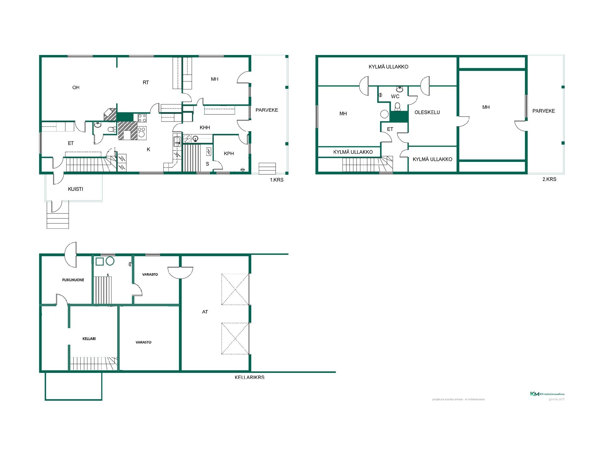
Valoisa ja viihtyisä koti luonnon ja keskustan välissä – nopeasti vapautuva omakotitalo Jämsässä. Tervetuloa ihastuttavaan omakotitaloon rauhallisella ja aurinkoisella sijainnilla, päättyvän kadun viimeisenä. Koti tarjoaa omaa rauhaa ja huoletonta arkea vain kävelymatkan päässä Jämsän keskustan palveluista. Alkujaan vuonna 1951 valmistunut talo on kokenut perusteellisen laajennuksen ja täydellisen peruskorjauksen vuonna 1993, jolloin uusittiin myös salaojat. Kokonaisuus yhdistää onnistuneesti kodikkaan tunnelman, toimivan pohjaratkaisun ja käytännölliset tilat isommallekin perheelle. Sisääntulokerroksessa arki rullaa vaivattomasti: keittiö, olohuone ja ruokailutila muodostavat viihtyisän kokonaisuuden yhdessä makuuhuoneen kanssa. Lisäksi kerroksesta löytyvät wc, kodinhoitohuone, pesuhuone sekä sähkösauna. Parvekkeelle on käynti sekä makuuhuoneesta että kodinhoitohuoneesta – täydellinen paikka aamukahveille tai iltahetkille auringossa. Yläkerrassa sijaitsee kaksi makuuhuonetta, oleskelutila ja parveke sekä kylmät vinttitilat, jotka tarjoavat reilusti säilytystilaa. Kellarikerros kruunaa kokonaisuuden tunnelmallisella puusaunalla, pukuhuoneella, josta on oma uloskäynti, sekä varastotiloilla. Lisäksi tilava kahden auton autotalli – todellinen arjen luksus. Lämmitysmuotona toimii suorasähkö, jota täydentävät ilmalämpöpumppu sekä leivinuuni ja pönttöuuni sähkövastuksilla – nämä tuovat sekä energiatehokkuutta että ainutlaatuista lämpöä ja tunnelmaa. Aurinkoinen tontti ja hyvin hoidettu piha omenapuineen ja marjapensaineen kutsuvat viihtymään ulos keväästä pitkälle syksyyn. Lapsiystävällinen ympäristö tarjoaa turvalliset puitteet leikkiin ja ulkoiluun.