
Pamela Hannula
Yrittäjä, Företagare, LKV, AFM, LVV, KED
pamela.hannula@kiinteistomaailma.fi
puh. 050 550 3990
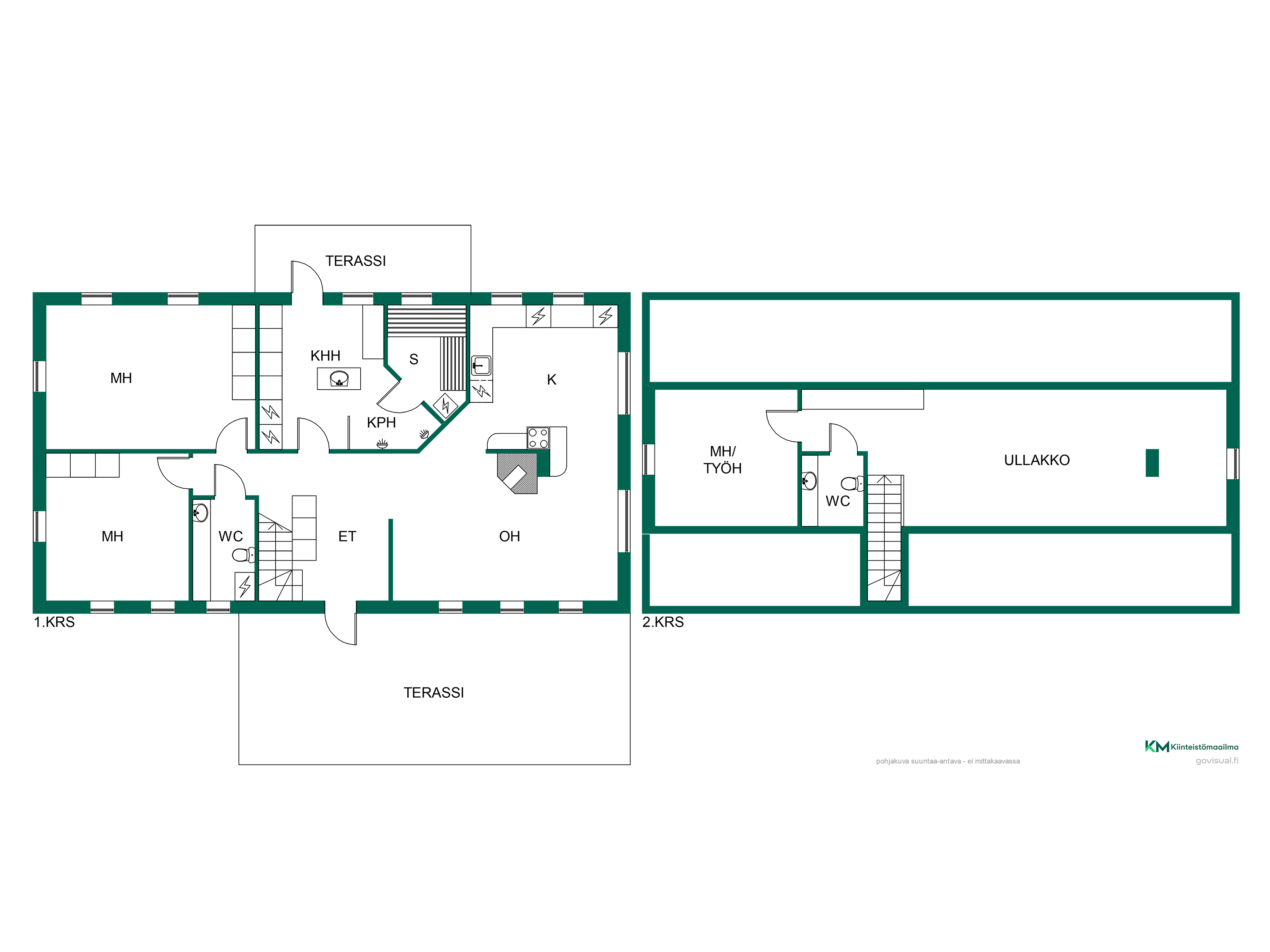
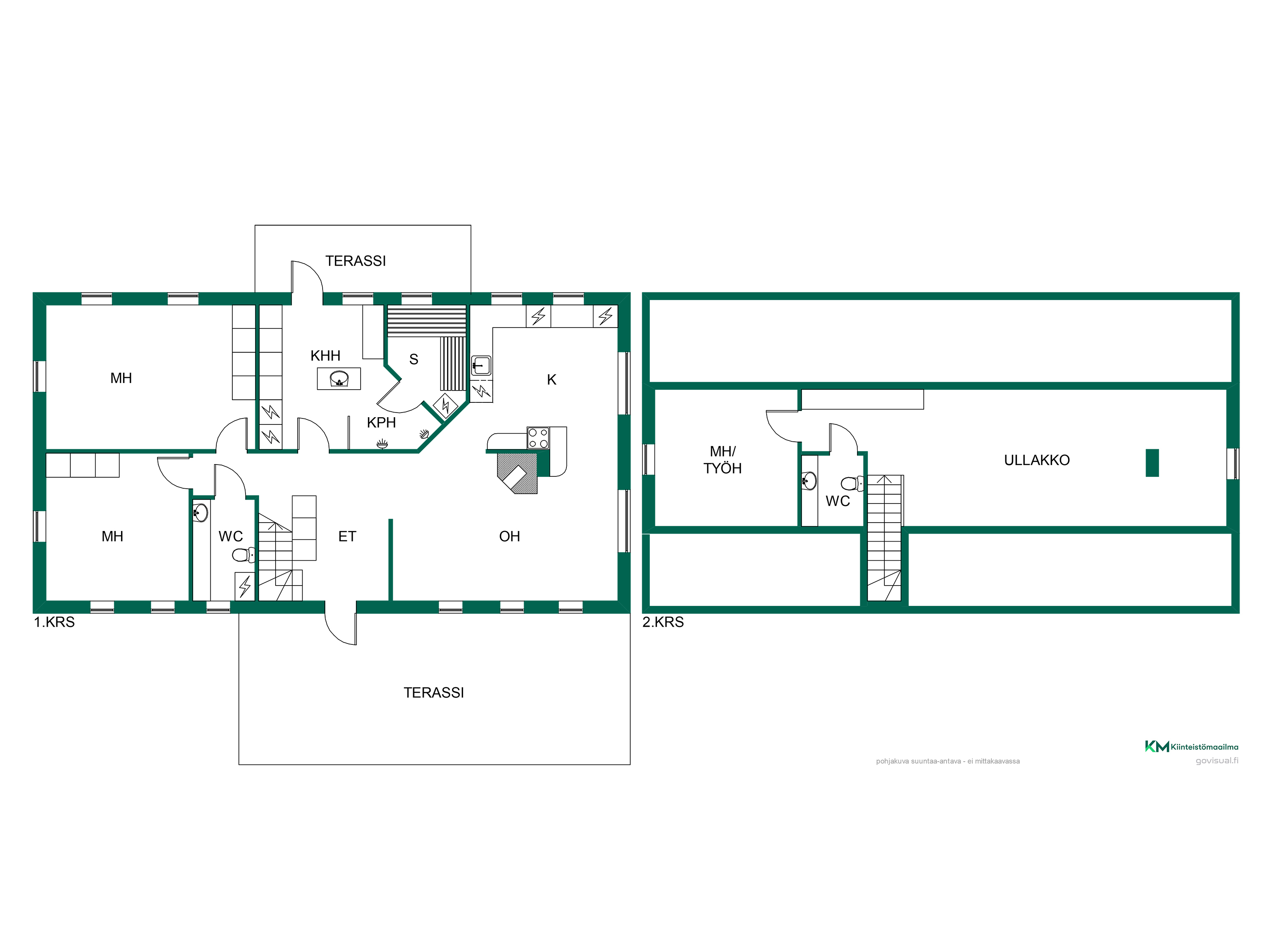
Degerbyn rauhallisessa kylässä Inkoossa sijaitsee tämä kodikas ja lämminhenkinen Plania-puutalo, joka tarjoaa viihtyisät asuintilat yhdessä tasossa n. 121 m². Lisäksi on lämmin käyttöullakko, n. 59 m², jossa oma wc-tila – erinomainen lisä esimerkiksi työhuoneeksi, harrastetilaksi tai vierasmajoitukseen. Keittiön ja olohuoneen suurista ikkunoista avautuu upea näkymä rinteen alla avautuvalle pellolle, ja valoa tulvii sisään pitkälle päivään. Olohuoneen keskipisteenä toimii näyttävä varaava kivitakka, joka tuo sekä lämpöä että tunnelmaa. Pääkerroksessa sijaitsevat kaksi makuuhuonetta, olohuone, keittiö, kodinhoitohuone, kylpyhuone ja sauna ja erillinen wc. Hyvin suunniteltu pohjaratkaisu palvelee niin arjen sujuvuutta kuin mukavaa oleskelua. Talossa on lisäksi kaksi viihtyisää terassia, joilla voi nauttia auringosta ja luonnon rauhasta. Talon ympärillä avautuu oma, monimuotoinen 8 353 m²:n tontti, jonka luoteisosassa kohoaa kaunista kalliota ja luonnonmukaista metsää. Pihapiiriin kuuluu myös kahden auton autokatos ja varasto, yhteensä noin 41 m², sekä erillinen pihavarasto noin 24 m². Kiinteistöllä on oma porakaivo ja jätevesijärjestelmä. Upeat Kopparnäsin ulkoilumahdollisuudet aivan vieressä! Monien mahdollisuuksien kohde ainoastaan noin 50 km:n päässä Helsingin ydinkeskustasta! Soita ja sovi esittelystä! Charmigt Planiahus i Degerby med ljusa och trivsamma utrymmen i ett plan samt varmt vindsutrymme med egen wc. Stora fönster mot åkern ger härligt ljus och i vardagsrummet finns en värmelagrande spis som skapar stämning. Mångsidig tomt 8 353 m² med biltak för 2 bilar +förråd. Ett hemtrevligt boende med många möjligheter, bara ca 50 km från Helsingfors.