
Mira Milan-Harmia
kiinteistönvälittäjä, LKV, LVV, KED
mira.milan@kiinteistomaailma.fi
puh. 0400 292 007
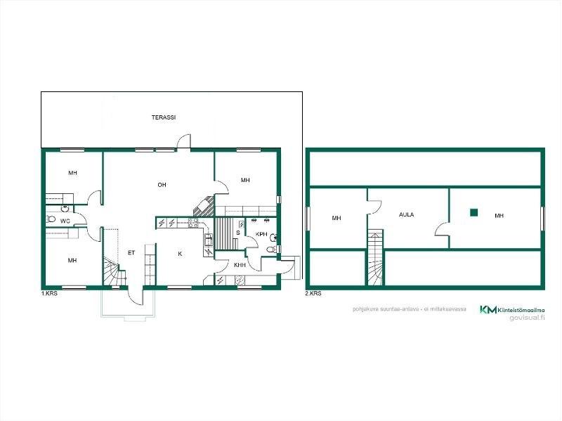
Luonnonkauniilla kallioisella metsätontilla Inkoon Degerbyssä 2004 valmistunut kuntotarkastettu tunnelmallinen omakotitalo! Sisääntulokerroksessa on 2007 uusittu Hanni Koroman suunnittelema tilava ja toimiva keittiö, kolme makuuhuonetta ja olohuone. Olohuoneessa varaava takka. Yläkerran laajennusosassa on aulatilan lisäksi kaksi makuuhuonetta. Lattiat on uusittu 2007. Kiinteistöllä on erillinen kahden auton autokatos ja varasto, sekä viehättävä paviljonki yläharjanteella. Lisäksi on pieni puuvarasto. Talo on liitetty vesiosuuskunnan vesi- ja viemärijärjestelmään heinäkuussa 2024. Omasta porakaivosta saa vettä esimerkiksi puutarhan ja istutuksien hoitoon. Tietoliikenne hoituu kuituyhteydellä. Tiemaksu takaa sujuvan liikennöinnin ympäri vuoden ja koulukyyditkin hoituu. Tämä koti on saanut paljon rakkautta, sekä huolenpitoa vuosien saatossa ja sen todellakin huomaa. Kannattaa ehdottomasti tulla tutustumaan. Varaa oma esittelyaikasi!