
Jani Kesälä
yrittäjä, kaupanvahvistaja, AKA-arvioija, LKV, KiAT, AKA
jani.kesala@kiinteistomaailma.fi
puh. 044 4600 104
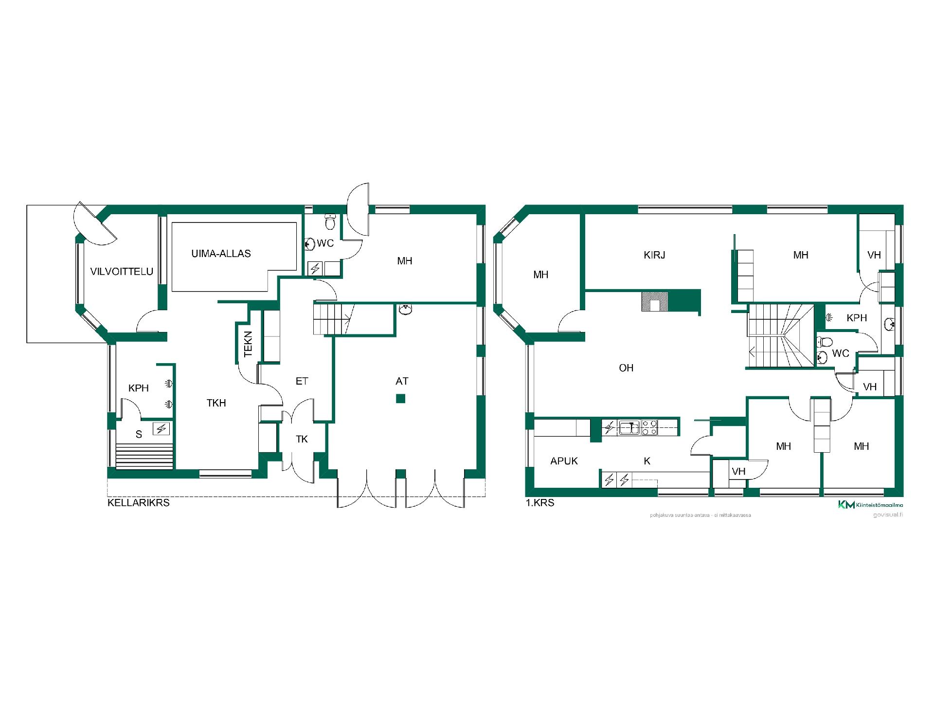
Komea kivitalo puistoon rajoittuvalla tontilla! Tämä koti muuntuu tarpeidesi mukaan ison perheen asunnoksi, edustustilaksi tai yritystoimintaan. Maalämpö pitää lämmityskulut kurissa, tallissa on tilaa kahdelle autolle ja alakerran saunaosasto on varustettu uima-altaalla. Talvisillanpuistoon rajoittuva tontti sijaitsee päättyvän tien varrella, joten alue on rauhallinen ja turvallinen myös pienten lasten perheille. Kohde on kiinteistöosakeyhtiömuotoinen, joten varainsiirtovero on vain 1,5 prosenttia. Päivittäisitkö sinä tämän 70-luvun helmen entiseen loistoonsa? Tervetuloa tutustumaan ja suunnittelemaan, varaa henkilökohtainen esittelyaikasi välittäjältä.