Tarjouskauppa

Heli Maijala
yrittäjä, YKV, LKV, KiAT, julkinen kaupanvahvistaja
heli.maijala@kiinteistomaailma.fi
puh. 0500 561 600
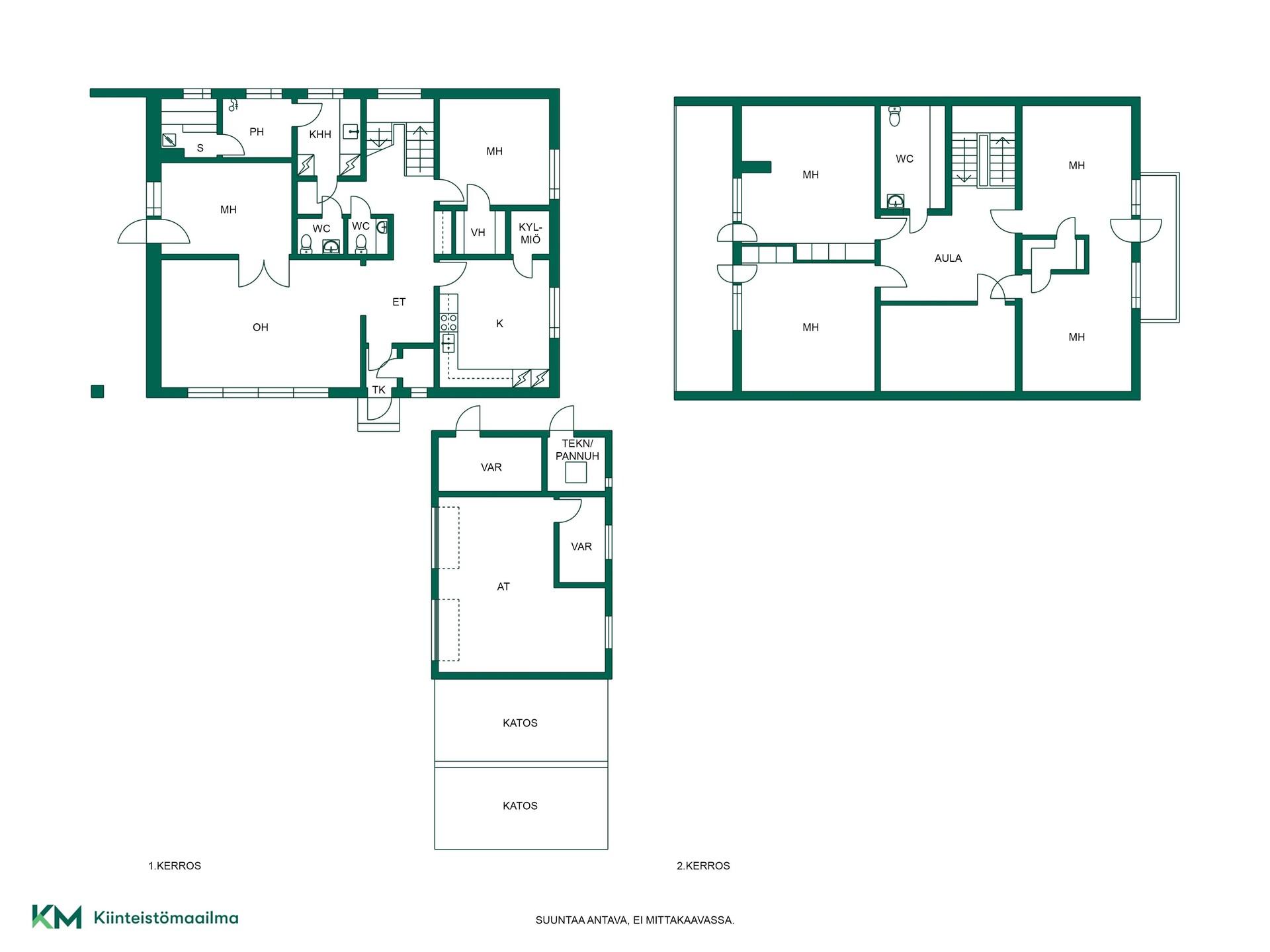
Tässä omakotitalossa riittää tilaa isommallekin perheelle! Tilava ja kodikas omakotitalo, jonka pohjaratkaisu antaa mahdollisuuden muokata ja remontoida tilat juuri omien tarpeiden mukaisiksi. Tästä kaksikerroksisesta kodista löytyy kuusi makuuhuonetta, pesuhuone, kolme wc:tä ja ikkunallinen sähkösauna, jossa voit rentoutua päivän päätteeksi. Olohuoneesta löytyy ilmalämpöpumppu. Omakotitalo sijaitsee isolla omalla 1482 m2 tontilla, mikä antaa vapauden liikkua ja nauttia perheen yhteisistä hetkistä vaikkapa pihapelien yhteydessä. Omakotitalo sijaitsee suositulla Hyllykallion asuinalueella, erinomaisten palveluiden välittömässä läheisyydessä. Lähistöllä kulkee suosittu Hyllykallion kuntorata, joka tarjoaa loistavat puitteet ulkoiluun ja liikuntaan ympäri vuoden, niin talvella kuin kesälläkin. Kiinteistöllä on kahden auton katos sekä lämmin autotalli, jotka tuovat käytännöllisyyttä ja mukavuutta arkeen sekä mahdollistaa erilaiseen puuhasteluun. Vuosien varrella on uusittu mm. vesikate sekä ikkunat. Lämmitysmuotona on öljylämmitys. Tervetuloa tutustumaan tähän monien mahdollisuuksien kotiin, ehkä juuri tässä on teidän perheenne seuraava osoite.