
Annukka Hyttinen
kiinteistönvälittäjä, LKV, KED, KiAT
annukka.hyttinen@kiinteistomaailma.fi
puh. 050 565 1162
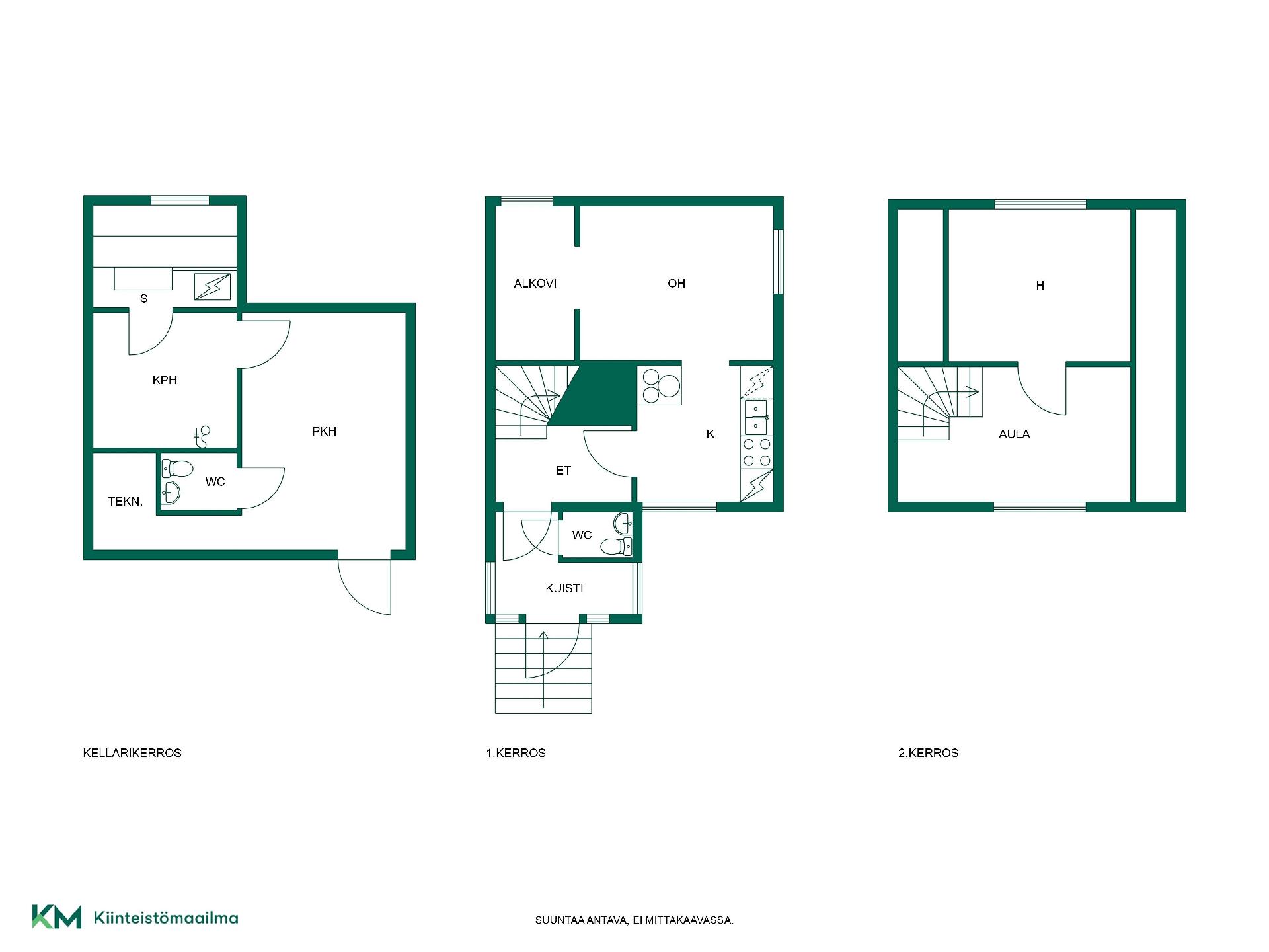
Tunnelmallinen hirsitalo historiallista charmia ja järven läheisyyttä Hollolassa Etsitkö kotia, jossa on sielua ja luonnetta? Tämä 1940-luvulla valmistunut viehättävä hirsitalo sijaitsee rauhallisella ja viihtyisällä Työtjärven alueella Hollolassa. Luonto on täällä lähellä, sillä lenkkipolut, hiihtoladut ja Työtjärven uimaranta sijaitsevat vain 600 metrin päässä. Arjen sujuvuuden takaa läheinen K-Market, ja koulut sekä päiväkodit löytyvät parin kilometrin säteeltä. Tämä kolmio levittäytyy kolmeen eri kerrokseen, tarjoten persoonallisia tiloja asumiseen. Yläkerrassa on makuuhuone ja aula, keskikerroksessa puolestaan olohuone, alkovi, keittiö ja eteiskuisti. Kellarikerros kätkee sisäänsä saunan, pesuhuoneen, pukuhuoneen sekä erillisen wc:n. Kokonaisuus on omiaan sinulle, joka arvostat kodin eri tasojen tuomaa rauhaa ja mahdollisuutta sisustaa tilat omalla tavallasi. Varustelultaan koti vastaa nykypäivän tarpeisiin: lämmityksestä huolehtivat kolme ilmalämpöpumppua sekä tunnelmallinen puuhella. Keittiöstä löytyy muun muassa astianpesukone ja sähköliesi. Tontilla on myös autotalli ja katos, jotka tuovat helpotusta autoilijan arkeen. Tämä koti etsii uusia asukkaita, jotka osaavat arvostaa 1940-luvun rakennusperinnettä ja haluavat asua lähellä luontoa, mutta silti kohtuullisten matkojen päässä palveluista. Omalla tontilla sijaitseva kokonaisuus tarjoaa loistavat raamit asumiselle. Tule tutustumaan tähän persoonalliseen kotiin ja aistimaan sen ainutlaatuinen tunnelma paikan päälle. Sovi oma esittelyaikasi ja varaudu ihastumaan!