
Tiina Liukkonen
, LKV, kiinteistönvälittäjä, kaupanvahvistaja
tiina.liukkonen@kiinteistomaailma.fi
puh. 050 5550540
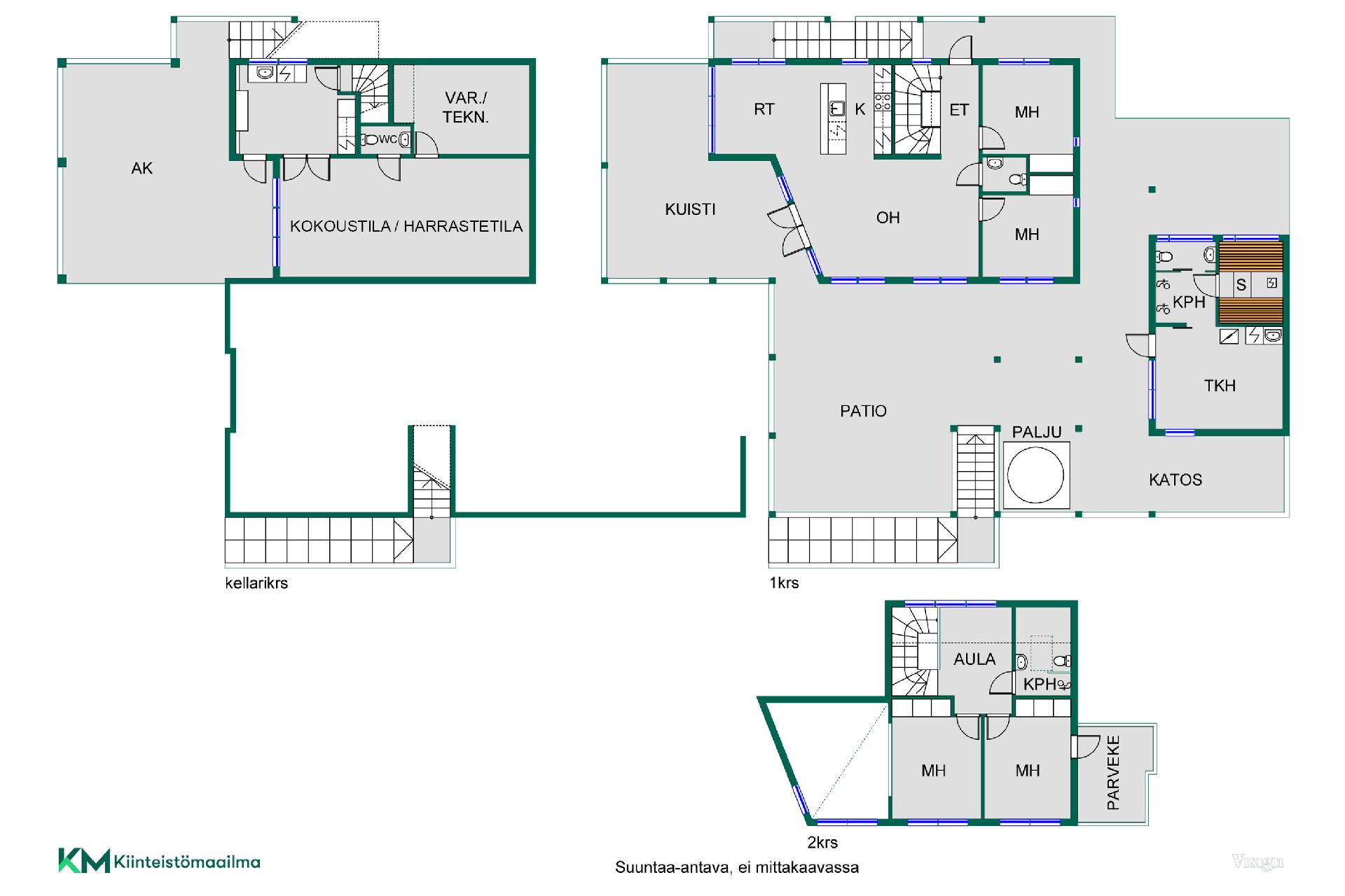
Upea, vuonna 2012 valmistunut huvila sijaitsee arvostetulla HimosYkkösen alueella aivan kaiken lähellä. Lämmitysmuotona on energiatehokas maalämpö, joka takaa miellyttävän asumisen ja kohtuulliset käyttökustannukset. Kävelymatkan päässä ovat Himos Areena, ravintolat ja festivaalialue sekä Länsi‑Himoksen rinteet ja golfkenttä, joten sijainti palvelee täydellisesti niin vapaa‑ajanviettoa kuin vuokraustoimintaakin. Kellarikerroksesta löytyy monikäyttöinen harraste‑ tai kokoustila, WC, kodinhoitohuone sekä talvivarasto, ja kulku käy suoraan autokatoksesta. Ensimmäisessä kerroksessa on kaksi makuuhuonetta, avara olohuone, ruokailutila, keittiö sekä WC. Yläkerrassa on kaksi makuuhuonetta, kylpyhuone ja parveke. Kokonaisuuden kruunaa erillinen saunarakennus, jossa on saunatupa, pesuhuone, WC ja tunnelmallinen sauna. Lämmitettyä laatoitusta pitkin pääsee suoraan ulkoporealtaalle nauttimaan rentouttavista hetkistä ja hyvästä seurasta vuoden ympäri. Suojaisa ja iso terassi tarjoaa puitteet monenlaiseen oleskeluun ja juhlaan. Autopaikkoja on useita, sekä katospaikkoja että sähkötolppapaikkoja. Kohde tarjoaa erinomaisen tuottopotentiaalin, sillä vuokratuotto on netto 52.000 euroa vuodessa (2025), josta on vähennetty alv ja Himoslomien provisio. Sanat eivät täysin riitä kuvaamaan tätä kokonaisuutta – tämä on nähtävä paikan päällä.