
Sari Halkosalmi
Yrittäjä, toimitusjohtaja, vastaava hoitaja, LKV, LVV
sari.halkosalmi@kiinteistomaailma.fi
puh. 0400 243 465
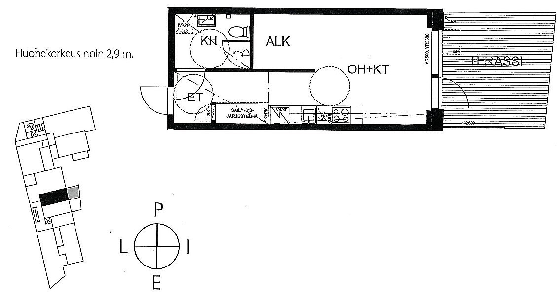
Lähes uutta vastaavan kodin viehätystä ajattoman ihanassa Munkkiniemessä! 1.7.2026 vapautuva tilava ja hyväpohjainen 1 h, kt, alkovi, kh, terassiparveke 30,5 m2, 1/8 kerros, näkymät itään vehreälle sisäpihalle. Lautaparkettilattiat, hyvin varusteltu keittotila: keraaminen liesi, erillisuuni, mikroaaltouuni, astianpesukone, jääkaappi/pakastin. Kylpyhuoneessa tilavaraus pesukoneelle ja kuivausrummulle, mukavuuslattialämmitys. Taloyhtiön ylimmässä kerroksessa avautuu upea saunaosasto ja asukkaiden yhteinen kerhotila, jonka lasitetulta terassilta kelpaa ihastella vehreää kaupunkimaisemaa. Kerhotilassa on mainio mahdollisuus tehdä vaikkapa etätöitä kaikessa rauhassa. Taloyhtiössä myös kuivaushuone ja viereiseen taloyhtiöön valmistuu talopesula, joka on yhteiskäytössä. Rakuunanpuiston fiksuihin ratkaisuihin kuuluu myös Postin Pakettilokerikko -palvelu. As. Oy Helsingin Rakuunanpuisto on valmistunut 11/2019 arvostettuun Munkkiniemeen, valmiiseen puistomaiseen asuinympäristöön. Täällä pääset nopeasti niin ydinkeskustaan kuin luonnonkin ääreen. Munkkiniemen ja Munkkivuoren palvelut ovat kävelyetäisyydellä. Kiinnostuitko? Täytä ensin alustava asuntohakemus (ei sitova) tämän linkin kautta: https://www.vuokrahelsinki.fi/lomakkeet/ Esittelyt sopimuksen mukaan.