
Tanja Rajala
kiinteistönvälittäjä, suurasiakaspäällikkö, MMM, LKV, KiAT
tanja.rajala@kiinteistomaailma.fi
puh. 040 867 3902
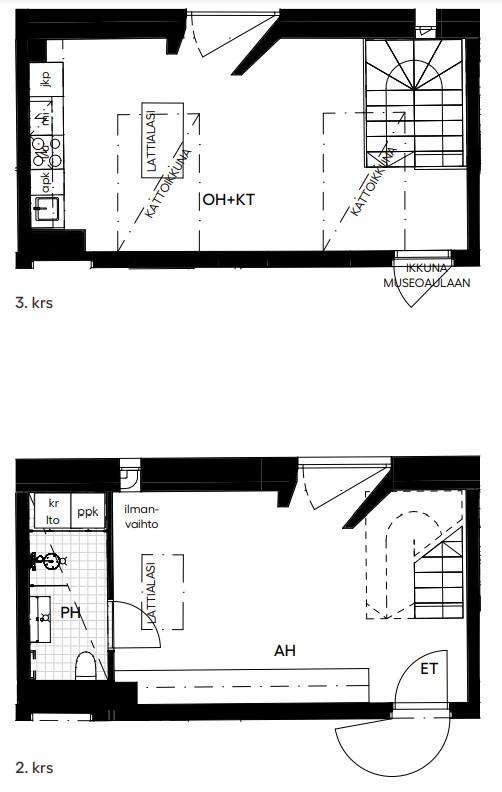
Tervetuloa Punavuorenkadulle Ajurien Talliin! Uusia asukkaita odottaa 1.3. vapautuva muuttovalmis kaksitasoinen loft-asunto. Tämä koti on varustettu ajantasaisella modernilla talotekniikalla, nykypäivän asumisen mukavuuksilla. Rakennuksen historia luo asumiselle puitteet, jollaisia et muualla koe. Ajurien Tallit on uniikki 2022 täysin saneerattu uudiskohde, joka on toteutettu pieteetillä ja historiaa vaalien. Rakennus sijaitsee sisäpihan suojassa, jonne ei kadun meteli kuulu. Ajurien Tallit voitti 2022 Kestävä kivitalo -palkinnon sen rakennusteknisistä ansioista ja onnistuneesta arkkitehtuurista. Punavuori on trendikäs ja eläväinen kaupunginosa, josta löydät kaiken tarpeellisen päivittäiseen elämään. Läheltä löydät ihanat pikkuputiikit sekä trendikkäät kahvilat ja ravintolat. Ulkoilemaan pääset kivenheiton päässä sijaitsevaan Koffin puistoon ja Etelä-Helsingin merellisille reiteille. - vuokra 1.400 euroa + vesimaksu 21 €/hlö/kk - vuokrasopimuksen minimivoimassaoloaika 12 kk - 2 kk vuokravakuus - lemmikit neuvoteltavissa Tiedustelut: Tanja Rajala, tanja.rajala@kiinteistomaailma.fi, p. 040 867 3902.