
Irene Gonzalez More
myyntipäällikkö, kiinteistönvälittäjä, LKV, LKV, tradenomi (YAMK)
irene.gonzalezmore@kiinteistomaailma.fi
puh. 040 849 2250
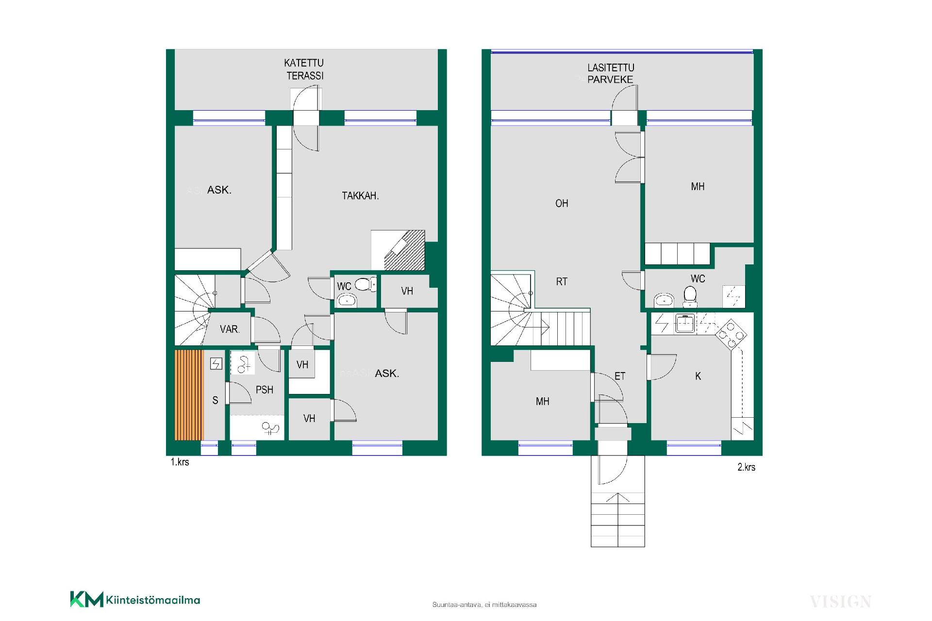
AVOIN ESITTELY SU 15.3. KLO 12-12:30 - TERVETULOA! TAI KYSY HALUTESSASI YKSITYISESITTELY VÄLITTÄJÄLTÄ. Tervetuloa tutustumaan tähän ihanan avaraan ja tilavaan perheasuntoon Länsi-Pakilassa. Tämä kahteen kerrokseen sijoittuva, 142m2 rivitalokoti hurmaa jo ensi hetkestä lähtien suurilla huoneillaan, selkeällä pohjaratkaisullaan ja valolla, joka tulvii sisään isoista ikkunoista. Täällä on kivasti tilaa isommallekin perheelle. Yläkerrassa sijaitsevat kodin oleskelu- ja makuutilat sekä keittiö. Olohuoneen yhteydessä olevaan ruokailutilaan mahtuu mukavasti isompikin ruokapöytä. Olohuoneesta on käynti lasitetulle parvekkeelle. Pohjakerroksessa on takkahuoneen sekä saunan ja pesutilojen lisäksi lisää huoneita, jotka taipuvat monenlaiseen käyttöön. Täältä kuljetaan myös katetulle terassille sekä suojaisalle, etelään suuntaavalle takapihalle. Taloyhtiössä on v. 2025 saatu päätökseen yhtiön putki- ja julkisivuremontti, eikä isoja remontteja on lähivuosille suunniteltu. Huoneistolle kuuluu oma katettu autopaikka talon edestä, jossa on sähköauton latausvalmius (hidaslataus). Toinen auto mahtuu näppärästi katospaikan edustalle. Sijainti Länsi-Pakilassa on rauhallinen, arvostettu ja perheiden suosima. Läheltä löytyvät koulut, päiväkodit, sujuvat liikenneyhteydet sekä vehreät ulkoilumaastot, jotka kutsuvat liikkumaan ja viihtymään. Täältä pääsee nopeasti esim. hiihtoladulle, ratsastustalleille, Paloheinän kuntoportaille tai golfkentälle. Liikuntamahdollisuuksia on paljon! Lämpimästi tervetuloa tutustumaan tähän kodikkaaseen ja muuttovalmiiseen kotiin. Tämä on täydellinen paikka perheelle, joka arvostaa väljyyttä ja rauhallista asumista.