
Jonna Torikka
kiinteistönvälittäjä, LKV, KiLAT, BBA
jonna.torikka@kiinteistomaailma.fi
puh. 050 552 5508
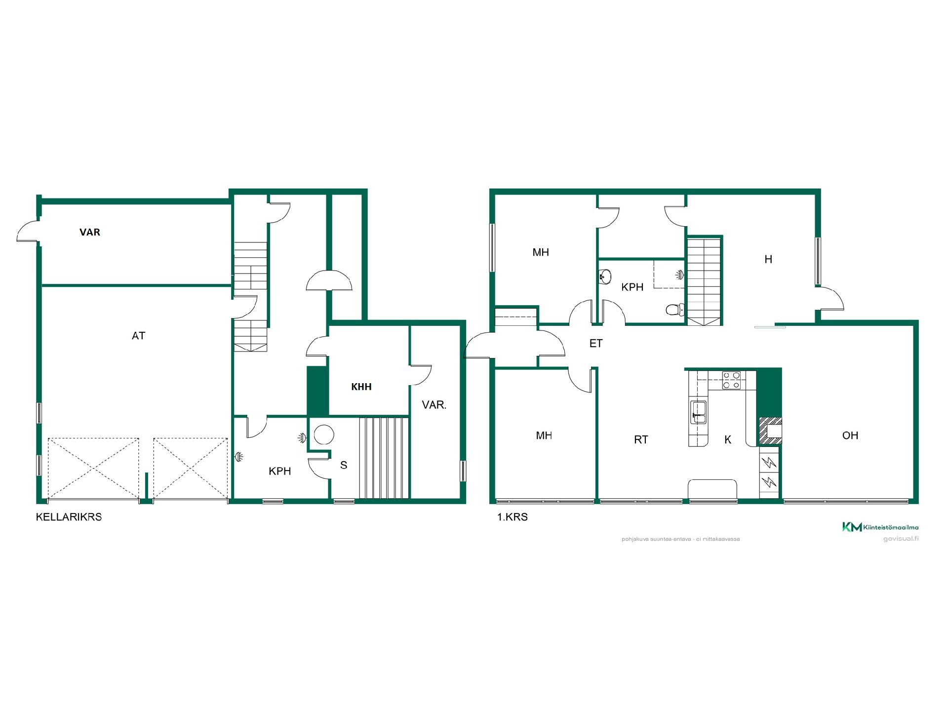
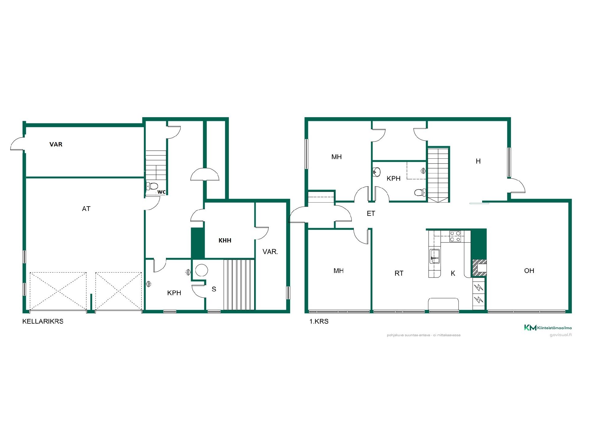
Tämä paritalohuoneisto sijaitsee Kannelmäen pientaloalueella Tanotorventiellä. Kodin sijainti on loistava ajatellen alueen palvelu- ja koulutarjontaa. Perheiden suosima katu on rauhallinen. Kauppakeskus Kaaren palveluille on kävelymatka ja bussit kulkevat Hämeenlinnanväylältä, jonne pääset suoraan kävelytietä pitkin. Tässä jo 1962 valmistuneessa paritalossa yhdistyy omakotitalomainen asuminen, sillä osakkaat vastaavat pitkälti oman talonsa ja pihansa ylläpidosta pienessä yhtiössä. Ensimmäisessä kerroksessa neliöitä on 99m2 ja siihen lukeutuu 3 hyvän kokoista makuuhuonetta, keittiö ja olohuonetilat sekä kulku suurelle taloa itä-etelä ja länsipuolelta kiertävälle omalle pihalle. Noin 63m2 kellarissa sijaitsevat pesuhuone, sauna ja kodinhoitotila sekä kattavat varastotilat. Kellarista on myös suora kulku autotalliin, josta myydään mukana noin 16m2 autotallipaikka omilla osakkeillaan. Pienen 4 huoneiston taloyhtiön hoitovastike on 2 €/m2 ja tontti on oma. Käytännössä taloyhtiö vastaa vain rakennusten ulkopuolisista yhteisistä rakenteista, kuten liittymistä ja yhteisistä putkistoista. Remontteja ja kunnostuksia on kuitenkin tehty yhteistuumin osakkaiden kesken. Suuri osa pihan infrasta on 1990-luvulta. Myyjä on pitänyt omasta talostaan hyvän huolen yli useamman vuosikymmenen ja päivittänyt huoneiston lämmitysmuodoksi maalämmön vuonna 2011, tehnyt kattoremontin 2020 ja uusinut katujulkisivun ikkunat. Tämän lisäksi pienempää huoltoa on tehty säännöllisesti. Tämän huoneiston käyttökustannukset ovat pysyneet erittäin maltillisina. Paritalo on kuntotarkastettu 3.12.2025 Lämpimästi tervetuloa tutustumaan!