
Pekka Riikonen
kiinteistönvälittäjä, LKV, LVV, DI
pekka.riikonen@kiinteistomaailma.fi
puh. 040 686 2324
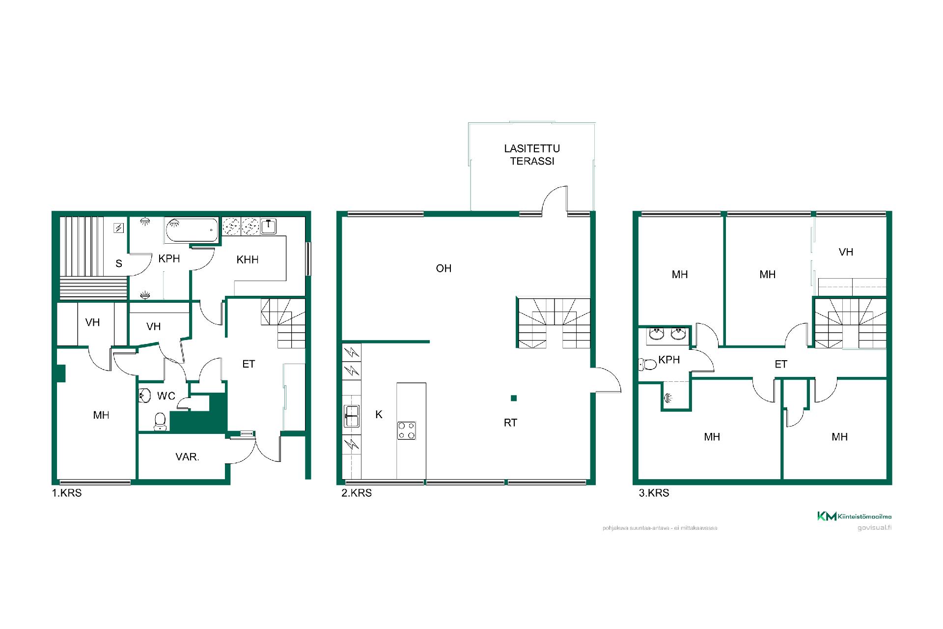
Tilaa ja toimivuutta isonkin perheen tarpeisiin!! Tervetuloa ihastumaan tähän Vartiokylässä keskeisellä paikalla sijaitsevaan, kauniille kalliorinnetontille rakennetun täyskivitalon valoisaan ja tyylikkääseen kotiin. Asunnon sydämenä toimii sen keskikerros koostuen avarasta ja yhtenäisestä tilasta, jossa sijaitsevat avokeittiö, todella iso ruokailutila sekä olohuone. Olohuoneen suuret ikkunapinnat antavat ulos kauniin vehreät näkymät ja sieltä on suora pääsy lasitetulle terassille ja kauttaaltaan suojatulle pihalle. Pihaterassin varustukseen kuuluu lisäksi kylpypalju jossa voi lämmitellä ja viettää yhteisiä hetkiä. Pihalla on myös kätevä ulkovarastorakennus. Asunnon makuuhuoneista neljä sijaitsee sen ylimmässä kerroksessa, josta löytyy myös kylpyhuone. Kaikki makuuhuoneet ovat reilun kokoisia ja päämakuuhuoneen yhteydessä on lisämukavuutta tuova iso vaatehuone. Alimmassa eli asunnon sisääntulokerroksessa sijaitsevat sauna-, kylpyhuone- ja kodinhoitotilat sekä runsaasti säilytystiloja. Täällä on myös yksi asunnon makuuhuoneista ja erillis-wc, joten osaa tästä kerroksesta voi hyvin käyttää lähes kuin erillisenä yksiönä tai esim. toimistotilana. Asunto vapautuu tarvittaessa nopeasti, ota yhteyttä niin kerron lisää ja voidaan sopia yksityisesittelystä!